EasyManua.ls Logo

Frymaster LOV BIELA14 - Contactor Box Wiring Diagrams

Frymaster LOV BIELA14
96 pages
Print Icon
To Next Page IconTo Next Page
To Next Page IconTo Next Page
To Previous Page IconTo Previous Page
To Previous Page IconTo Previous Page
Loading...
1-48
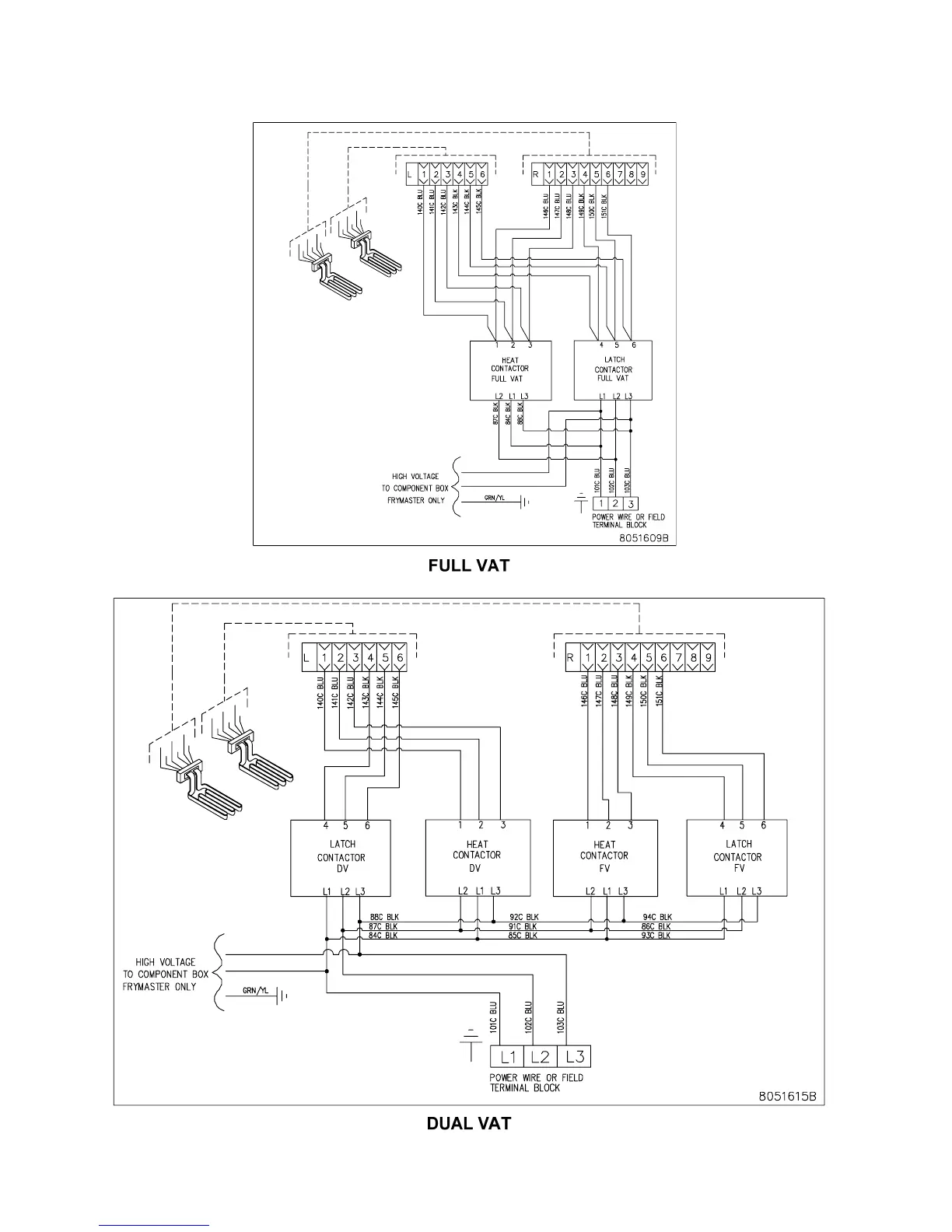
1.19.5 Contactor Box – Delta Configuration

Table of Contents

Related product manuals