EasyManua.ls Logo

Frymaster LOV BIELA14 - Page 61

Frymaster LOV BIELA14
96 pages
Print Icon
To Next Page IconTo Next Page
To Next Page IconTo Next Page
To Previous Page IconTo Previous Page
To Previous Page IconTo Previous Page
Loading...
1-54
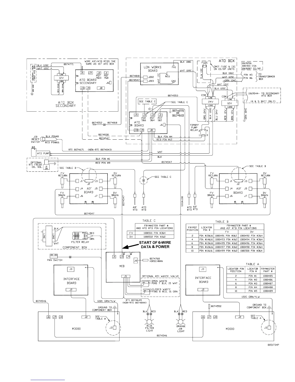
1.19.11 BIELA14 Gen II Series LOV™ Simplified Wiring

Table of Contents

Related product manuals