EasyManua.ls Logo

GE PT7800DH2BB - Installation

GE PT7800DH2BB
76 pages
Print Icon
To Next Page IconTo Next Page
To Next Page IconTo Next Page
To Previous Page IconTo Previous Page
To Previous Page IconTo Previous Page
Loading...
– 15 –
Installation
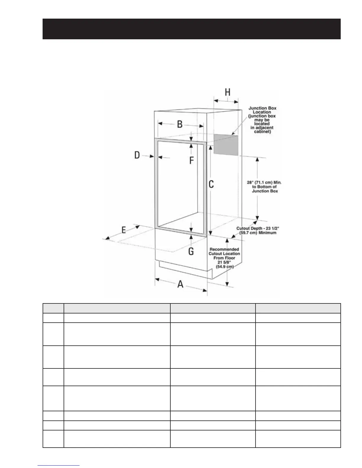
CUTOUT FOR DOUBLE OVENS (with Upper Microwave Oven)
NOTE: If the cabinet does not have a front frame and the sides are less than 3/4” (1.9 cm) thick, shim both
sides equally to establish the cutout width.
Dim. Description 27” Oven with Microwave 30” Oven with Microwave
A Cabinet Width 27” (68.6 cm) 30” (76.2 cm)
B Cutout Width 25” (63.5 cm) min.
25 1/4” (64.1 cm) max.
28 1/2” (72.4 cm) min.
28 5/8” (72.7 cm) max.
C Cutout Height 41 1/8” (104.5 cm) min.
41 1/4” (104.8 cm) max.
42 3/16” (107.2 cm) min.
42 1/4” (107.3 cm) max.
D Overlap of Oven Over Side Edges of
Cutout
1” (2.5 cm) 11/16” (1.75 cm)
E Clearance to Adjacent Corners,
Drawers, Walls, etc., When Door Is
Open
23” (58.4 cm) min. 23” (58.4 cm)
F Overlap of Oven Top of Cutout 1” (2.5 cm) min. 1” (2.5 cm) min.
G Overlap of Oven Bottom of Cutout 1” (2.5 cm) min. 1 1/4” (3.2 cm)
H Junction Box Location 8 3/4” (22.2 cm) max. right
side only
9 1/2” (24.1 cm) max. right
side only

Other manuals for GE PT7800DH2BB

Related product manuals