EasyManua.ls Logo

GE PT7800DH2BB - Page 31

GE PT7800DH2BB
76 pages
Print Icon
To Next Page IconTo Next Page
To Next Page IconTo Next Page
To Previous Page IconTo Previous Page
To Previous Page IconTo Previous Page
Loading...
– 31 –
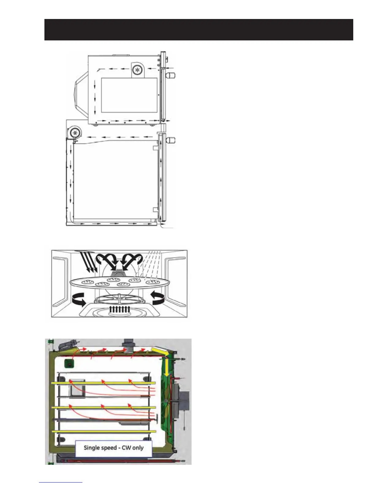
$LUÀRZ
Cool air is drawn into the top grille on the upper
oven and discharged at the bottom of the oven.
Cool air is also drawn up through the lower oven
door, over the top oven, which includes the oven
vent discharge, down the back and out through the
bottom of lower oven.
A typical air pattern of convection and Speedcook
upper ovens.
The lower oven uses the single speed, one direction
motor. Heated oven cavity air is drawn down from
the top rear and forced through the middle vents of
the convection cover. The motor turns clockwise.

Other manuals for GE PT7800DH2BB

Related product manuals