EasyManua.ls Logo

Gerber DCS 2500 - Page 18

Default Icon
176 pages
Print Icon
To Next Page IconTo Next Page
To Next Page IconTo Next Page
To Previous Page IconTo Previous Page
To Previous Page IconTo Previous Page
Loading...
Page 10
English
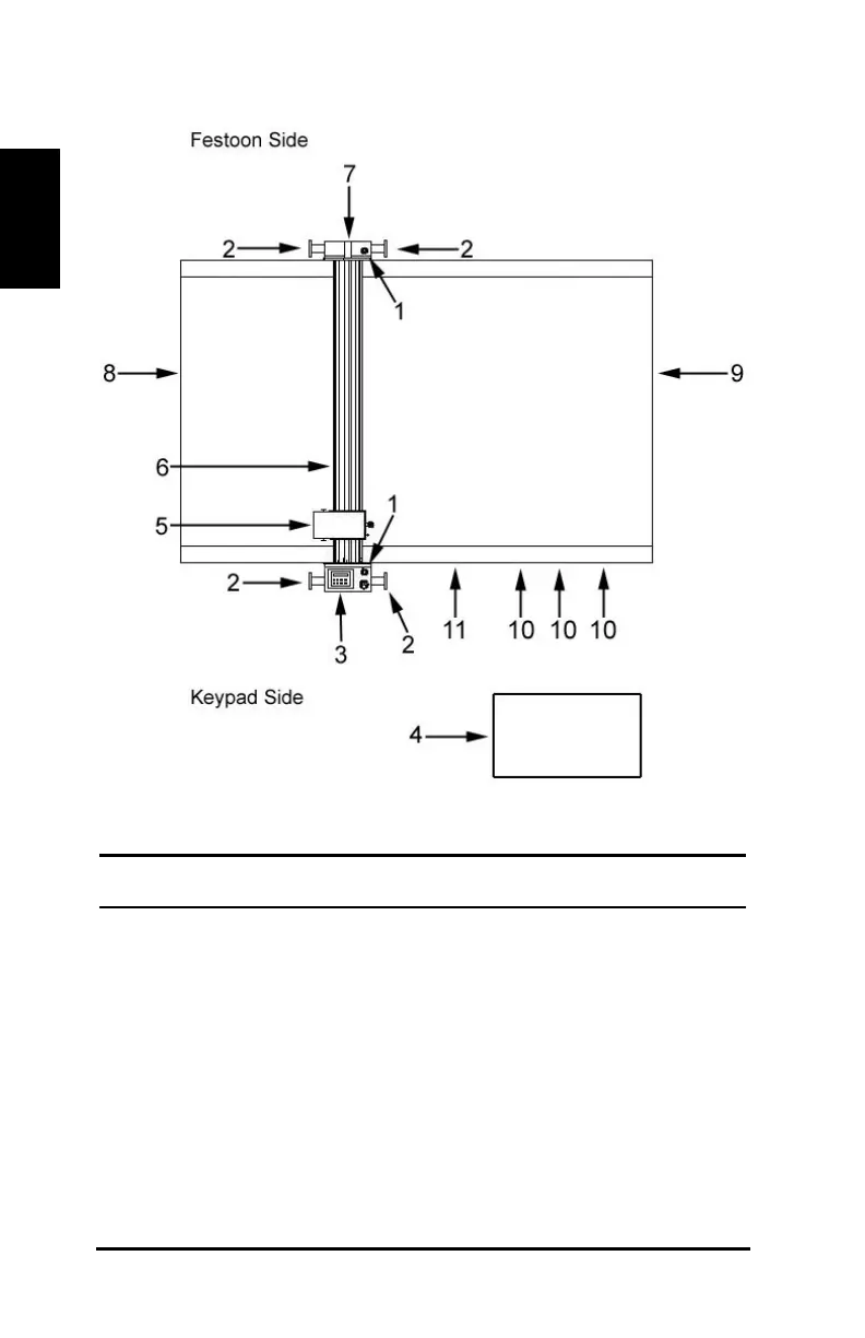
Figure 3: GERBERcutter overview
ID
Component
E-Stop switch
E-Stop bumper arm
Beam control panel (BCP)
Control desk (typical location not supplied by Gerber)
with control box
Cutter head
Beam
Festoon-side cover

Table of Contents

Related product manuals