EasyManua.ls Logo

HANGCHA CBD20-AC1S - Page 87

HANGCHA CBD20-AC1S
117 pages
Print Icon
To Next Page IconTo Next Page
To Next Page IconTo Next Page
To Previous Page IconTo Previous Page
To Previous Page IconTo Previous Page
Loading...
83
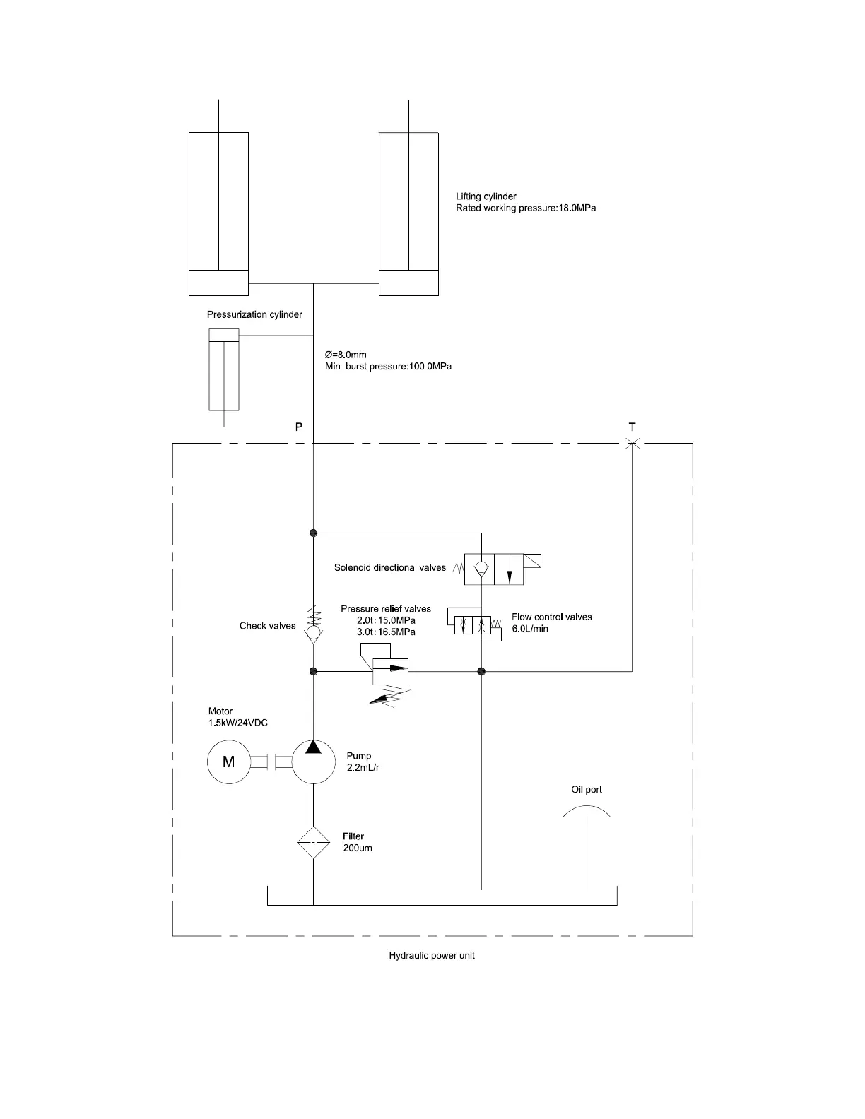
CBD20/30-AC1S, CBD20/30-AZ3S Hydraulic Schematic Diagram

Table of Contents

Related product manuals