EasyManua.ls Logo

Hisense 12K - Installation(12 K,18 K)

Hisense 12K
160 pages
Print Icon
To Next Page IconTo Next Page
To Next Page IconTo Next Page
To Previous Page IconTo Previous Page
To Previous Page IconTo Previous Page
Loading...
3.2 Installation(12K,18K)
Installation and Maintenance
13
Ceiling
Roof
Wall
Drain pipe
Over1500mm
Over1500mm
Over 1500mm
Over 1500mm
3.2.2 Height of ceiling board
Avoid installing at a place of greasy dirt or steam.
Normally, keep it ceiling board 2.5m-3m above the ground.
3.2.1 Location for installing indoor unit
Do no put anything near the air inlet grill to obstruct it from air
absorption.
To prevent the effects of a fluorescent lamps, keep the main
unit from it at least 1.5m.
Keep the unit and remote controller 1m or more apart from
television, radio etc.
Where the roof is strong enough to bear the weight of indoor unit ,
and in not tend to increasing operation sound and vibration.
Where there is no obstacle near the air outlet and air can be easily
blown to every corner.
Where drain pipe can extend t outside of the wall from the ceiling
board.
It is preferable to have a special draining facility.
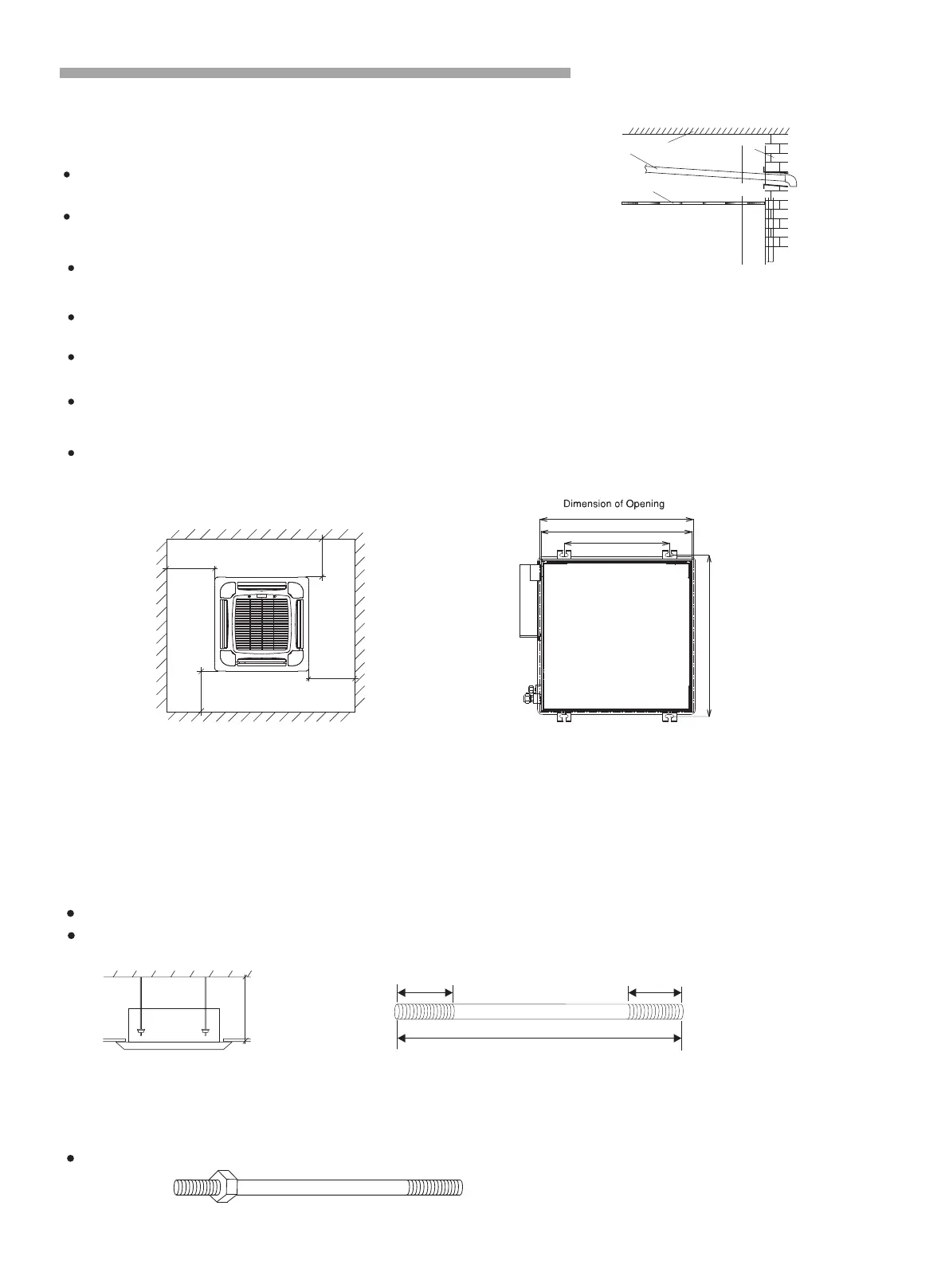
Pattern board for installation is printed on the packing. Cut off the pattern for opening the false ceiling and
installation suspension bolts. (Note: Below reference is only applicable to a house made of concrete.)
Measure the distance H between the roof surface and the ceiling board ;
Make four suspending poles with M10 screw thread on both ends (metric system) as the below figure
shown.(processed with 10 pole) F
H
L1 L1
L
Value of L and L1 are calculated as below
L1=50mm (when H<255mmL1=40mm
L=1.5L1+H-230 (unit: mm)
Turn 4 attached nuts onto the thread ends on the suspending poles as shown below:
3.2.3 Indoor unit installation
575 to 590
570(Unit Size)
400
610

Table of Contents

Other manuals for Hisense 12K

Related product manuals