EasyManua.ls Logo

Honeywell HON COCON 13 - 4 - Installation & Operation; Installation Instructions

Honeywell HON COCON 13
31 pages
Print Icon
To Next Page IconTo Next Page
To Next Page IconTo Next Page
To Previous Page IconTo Previous Page
To Previous Page IconTo Previous Page
Loading...
Operators manual
© 2017 Honeywell International Inc.
Operators manual underground gas pressure reducing station
Type: HON COCON 13
Page 18
4.Installation&operation
4.1Installationinstructions
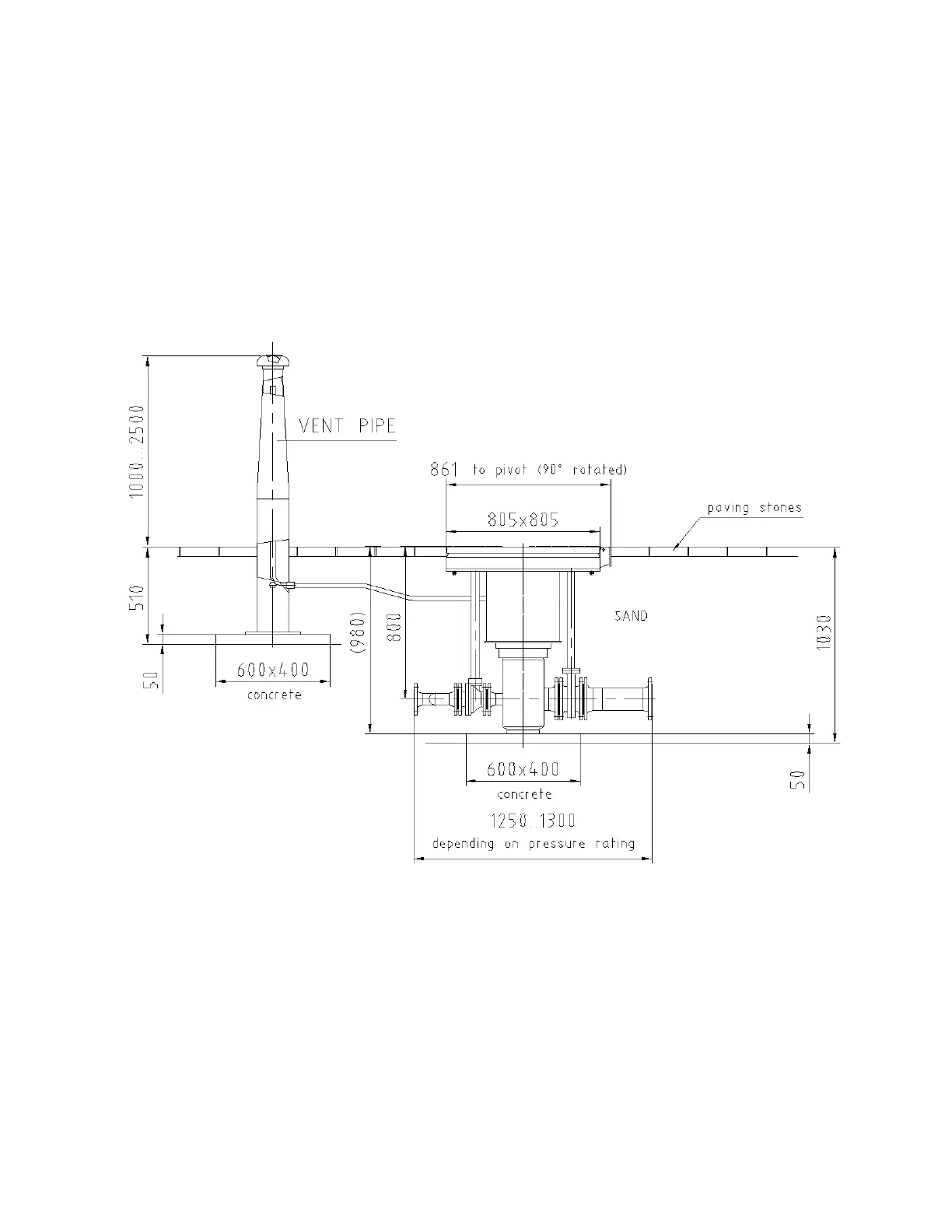
Thischapterdescribestheinstallationofthecasingandtheattachmentoftheupstreamsupplyanddownstream
dischargepipestothebody.Illustration4.1isadrawingofafullyinstalledstation.Usethisdrawingforguidancein
thenextfourparagraphs.
Illustration4.1'Fullyinstalledstation'

Related product manuals