EasyManua.ls Logo

Honeywell VFD CORE - Sink (NPN);Source (PNP) Mode

Honeywell VFD CORE
258 pages
Print Icon
To Next Page IconTo Next Page
To Next Page IconTo Next Page
To Previous Page IconTo Previous Page
To Previous Page IconTo Previous Page
Loading...
CHAPTER 4: WIRING
21 63-4528—04
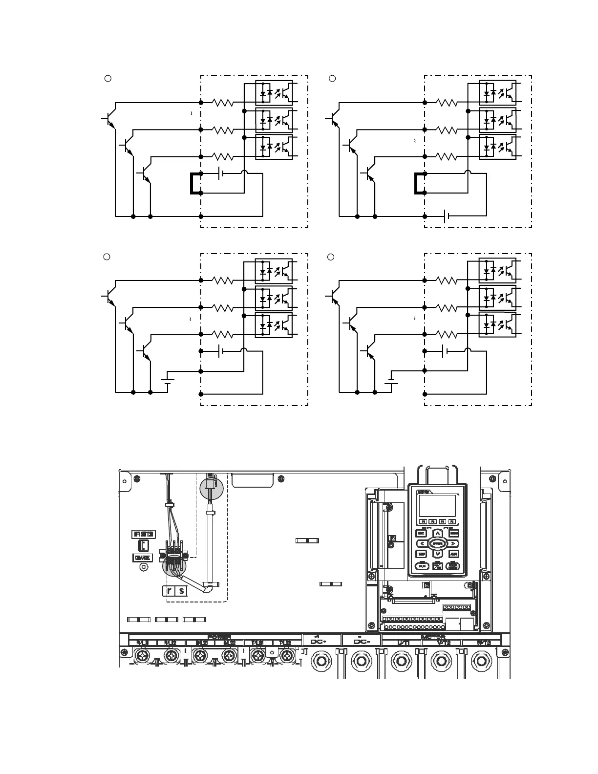
Fig. 3. Sink (NPN)/Source (PNP) Mode.
Option number 2 Source Mode is most frequently used for Honeywell VFDs.
Fig. 4. Frame E, remove terminal r and terminal s before using DC-Link.
(As circled in dotted line, uninstall the gray section and properly store cable r and cable s.
Cable r and cable s are not available in optional accessories; do not throw them away.)
M33246
DCM
COM
M1
M2
M8
+24V
+24V
+24V
+24V
DCM
COM
INTERNAL CIRCUIT
INTERNAL CIRCUIT
INTERNAL CIRCUIT
INTERNAL CIRCUIT
DCM
COM
SINK MODE
WITH EXTERNAL POWER
SOURCE MODE
WITH EXTERNAL POWER
SINK MODE
WITH INTERNAL POWER
(+24 VD C)
SOURCE MODE
WITH INTERNAL POWER
(+24 VD C)
EXTERNAL POWER +24V
EXTERNAL POWER +24V
DCM
COM
2
M1
M2
M8
M1
M2
M8
M1
M2
M8
4
3
1
M33247

Related product manuals