EasyManua.ls Logo

HP ProLiant DL360 Gen10 - Page 63

HP ProLiant DL360 Gen10
112 pages
To Next Page IconTo Next Page
To Next Page IconTo Next Page
To Previous Page IconTo Previous Page
To Previous Page IconTo Previous Page
Loading...
a. Extend the server from the rack.
b. Remove the server from the rack.
4. Remove the access panel.
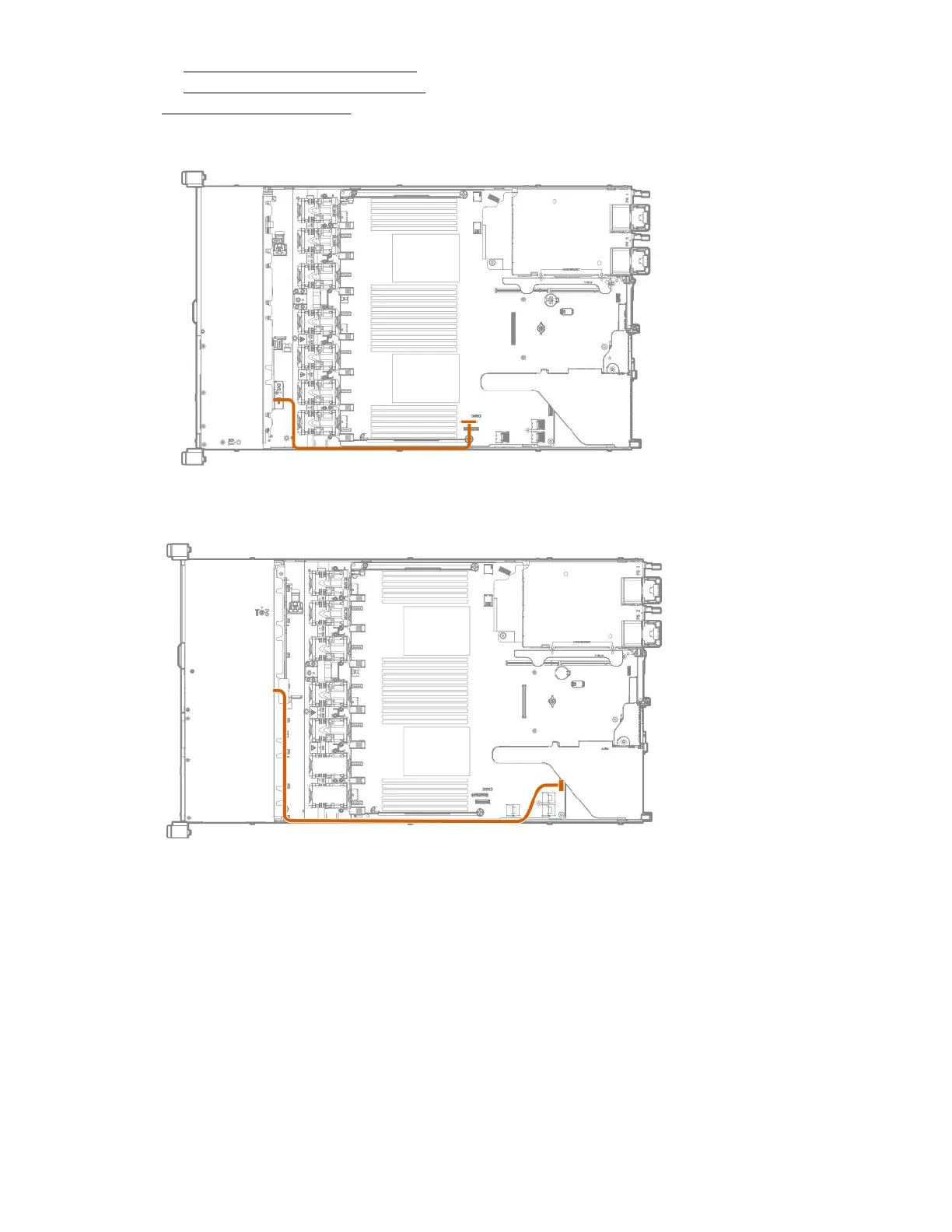
5. If needed, disconnect the optical disk drive cable from the system board.
6. Disconnect the display port/USB cable from the system board.
7. Remove the component.
Removal and replacement procedures 63

Table of Contents

Other manuals for HP ProLiant DL360 Gen10

Related product manuals