EasyManua.ls Logo

HP ProLiant DL580 Gen8 - Power Daughter Board

HP ProLiant DL580 Gen8
94 pages
To Next Page IconTo Next Page
To Next Page IconTo Next Page
To Previous Page IconTo Previous Page
To Previous Page IconTo Previous Page
Loading...
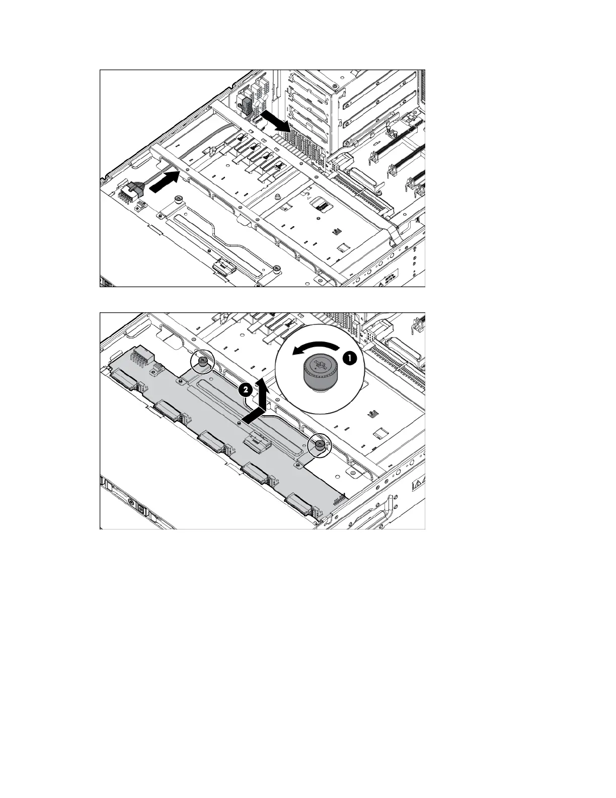
Removal and replacement procedures 61
9.
Disconnect the power cable.
10. Loosen the thumbscrews, and then remove the backplane.
To replace the component, reverse the removal procedure.
Power daughter board
To remove the component:
1. Power down the server (on page 25).
2. Remove all power:
a. Disconnect each power cord from the power source.
b. Disconnect each power cord from the server.
3. Extend or remove the server from the rack ("Extend the server from the rack" on page 25, "Remove the
server from the rack" on page 26).

Table of Contents

Other manuals for HP ProLiant DL580 Gen8

Related product manuals