EasyManua.ls Logo

Hubbell VERSA-TECH LT - Dimensions - Pole;Structure Mount

Hubbell VERSA-TECH LT
50 pages
Print Icon
To Next Page IconTo Next Page
To Next Page IconTo Next Page
To Previous Page IconTo Previous Page
To Previous Page IconTo Previous Page
Loading...
PSP8620311
Rev. E
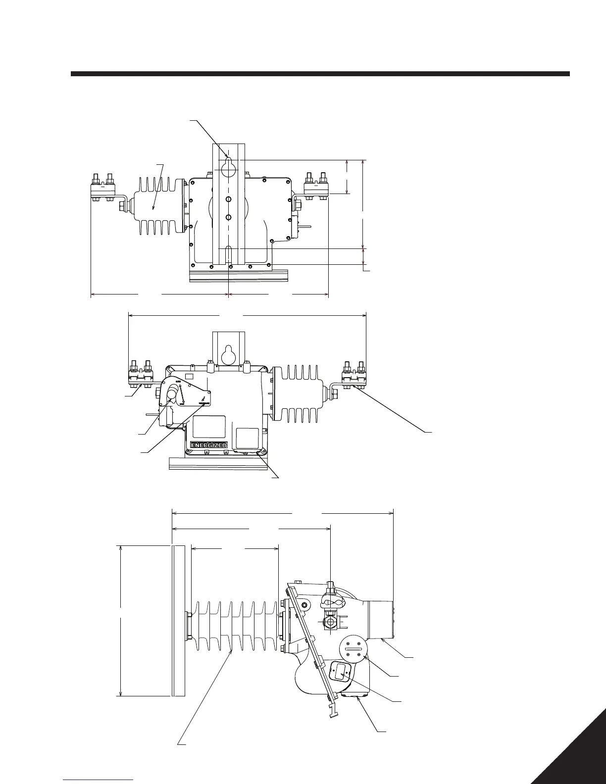
7
VACUUM INTERRUPTER
2-HOLE NEMA
PAD (STANDARD)
TYPICAL
2-HOLE NEMA
PAD (STANDARD)
TYPICAL
NON-RECLOSE
LEVER
OPERATING LEVER
LOCKOUT INDICATOR
BEACON AND COUNTER
MOUNTING HOLES FOR
5/8" (15mm) BOLTS
11" (27.9cm) CENTER
TO CENTER NOMINAL.
17.1 12.4
2.0
11.0
4.2
29.5
SERIAL PROGRAMMING PORT
LEAKAGE DISTANCE - 39.4"
LOCKOUT INDICATOR BEACON
AND COUNTER
OPERATING LEVER
BATTERY PACK
(HOT STICK REPLACEABLE)
15.8
8.7
22.0
15.0
Dimensions - Pole/Structure mounting
1 — Overview
Side View
Front View
Back View

Other manuals for Hubbell VERSA-TECH LT

Related product manuals