EasyManua.ls Logo

Hubbell VERSA-TECH LT - Dimensions - Crossarm Mount

Hubbell VERSA-TECH LT
50 pages
Print Icon
To Next Page IconTo Next Page
To Next Page IconTo Next Page
To Previous Page IconTo Previous Page
To Previous Page IconTo Previous Page
Loading...
PSP8620311
Rev. E
8
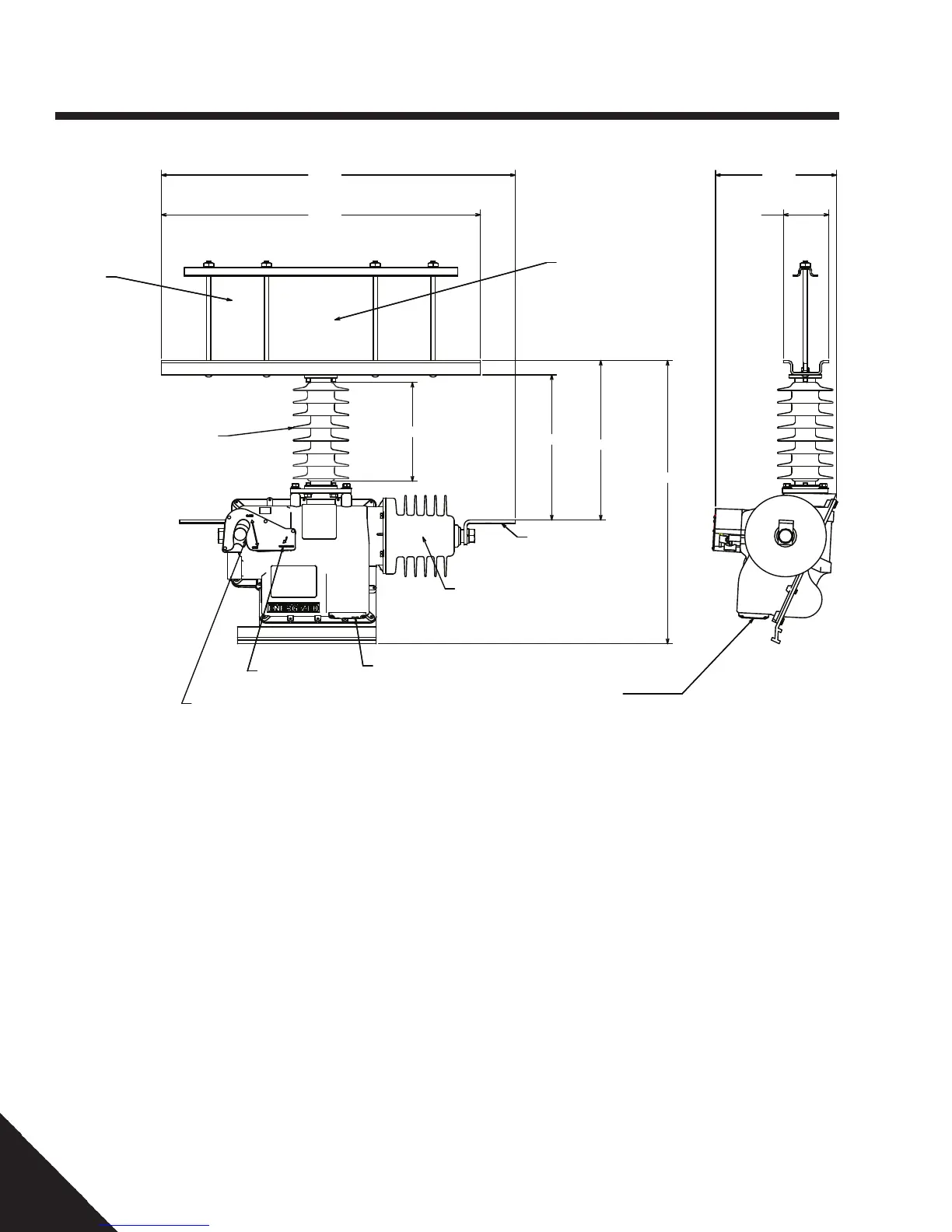
Dimensions - Crossarm mounting
1 — Overview
ADJUSTABLE
3" - 9-1/2"
ADJUSTABLE
5-1/8" - 10-1/4"
TYPICAL
OPERATING LEVER
LOCKOUT INDICATOR BEACON
AND COUNTER
2-HOLE NEMA
PAD (STANDARD)
TYPICAL
VACUUM INTERRUPTER
LEAKAGE DISTANCE - 39.4"
LOCKOUT INDICATOR BEACON
AND COUNTER
NON-RECLOSE LEVER
28.0
31.1
4.0
10.6
24.9
8.7
12.7
14.0
Side ViewFront View

Other manuals for Hubbell VERSA-TECH LT

Related product manuals