EasyManua.ls Logo

HydraMaster MAXX 450D - Page 47

Default Icon
187 pages
Print Icon
To Next Page IconTo Next Page
To Next Page IconTo Next Page
To Previous Page IconTo Previous Page
To Previous Page IconTo Previous Page
Loading...
MAXX 450D/470/Diesel Page 1-35
HydraMaster Corporation
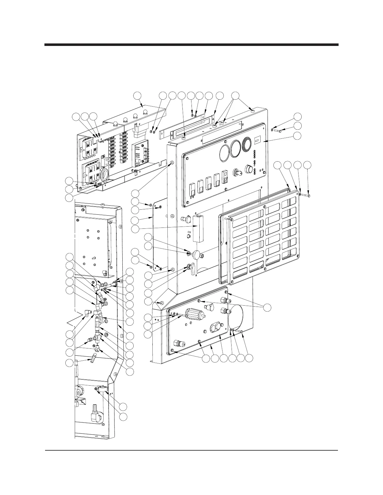
Figure 1-12 Dash Assembly
D-4359 Rev F
4
22
24
19
2 22 21
24
23
223
9
20
26
2227 106
22
27
10
BACK DETIAL
11
32
22
36
34
33
32
16
11
13
7
11
14
37
8
12
16
15
5
15
10
10
25
25
16
7
18
10
1
1
23
22
28
22
23
21
24
24
17
22
23
28
HIDDEN
30
29
31
15
35