EasyManua.ls Logo

Immergas EOLO STAR 24 4E - Main Dimensions; Minimum Installation Distances

Immergas EOLO STAR 24 4E
52 pages
Print Icon
To Next Page IconTo Next Page
To Next Page IconTo Next Page
To Previous Page IconTo Previous Page
To Previous Page IconTo Previous Page
Loading...
2
3
9
INSTALLER
USER
MAINTENANCE TECHNICIAN
TECHNICAL DATA
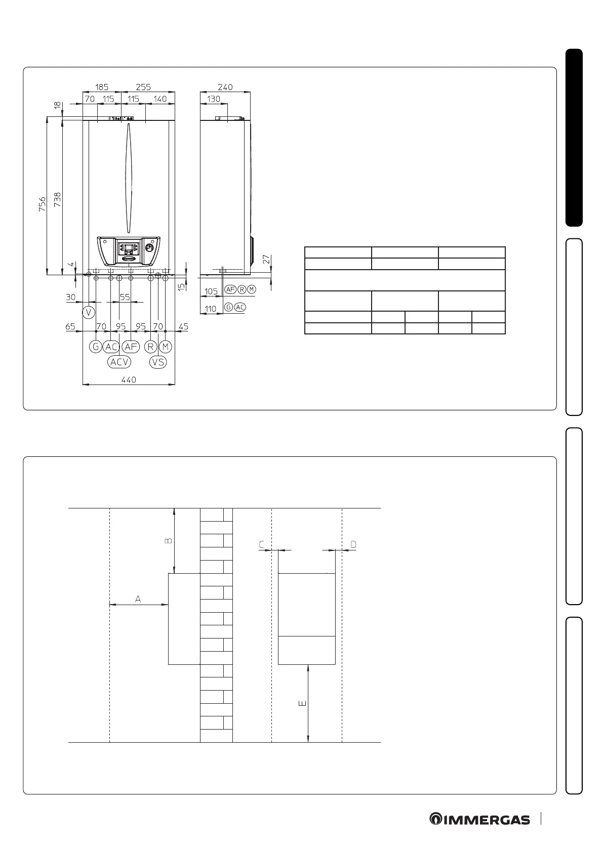
1.2 MAIN DIMENSIONS.
Key:
A - 450 mm
B - 350 mm
C - 30 mm
D - 30 mm
E - 350 mm
1.3 MINIMUM INSTALLATION DISTANCES.
Key:
G - Gas supply
AC - Domestic hot water outlet
ACV - Solar valve kit DHW inlet (Optional)
AF - Domestic cold water inlet
R - System return
M - System ow
V - Electrical connection
VS - Safety valve drain
PLEASE NOTE: connection group (optional)
Height (mm) Width (mm) Depth (mm)
756 440 240
CONNECTIONS
GAS
DOMESTIC
HOT WATER
SYSTEM
G AC AF R M
3/4” 1/2” 1/2” 3/4” 3/4”

Table of Contents

Related product manuals