EasyManua.ls Logo

Immergas Victrix Tera 32 1 - Separator Kit Installation

Immergas Victrix Tera 32 1
68 pages
Print Icon
To Next Page IconTo Next Page
To Next Page IconTo Next Page
To Previous Page IconTo Previous Page
To Previous Page IconTo Previous Page
Loading...
C
83
C
43
C
53
* - C
83
26 27
28
1
4
7
9
5
5
6
7
8
3
2
S
A
INSTALLERUSER
MAINTENANCE TECHNICIAN
23
e kit includes:
N° 1 - Exhaust gasket (1)
N° 1 - Flange gasket (2)
N° 1 - Female intake ange (3)
N° 1 - Female exhaust ange (4)
N° 2 - Ø 80 90° bend (5)
N° 1 - Intake terminal Ø 80 (6)
N° 2 - Internal wall sealing plates (7)
N° 1 - External wall sealing plate (8)
N° 1 - Exhaust pipe Ø 80 (9)
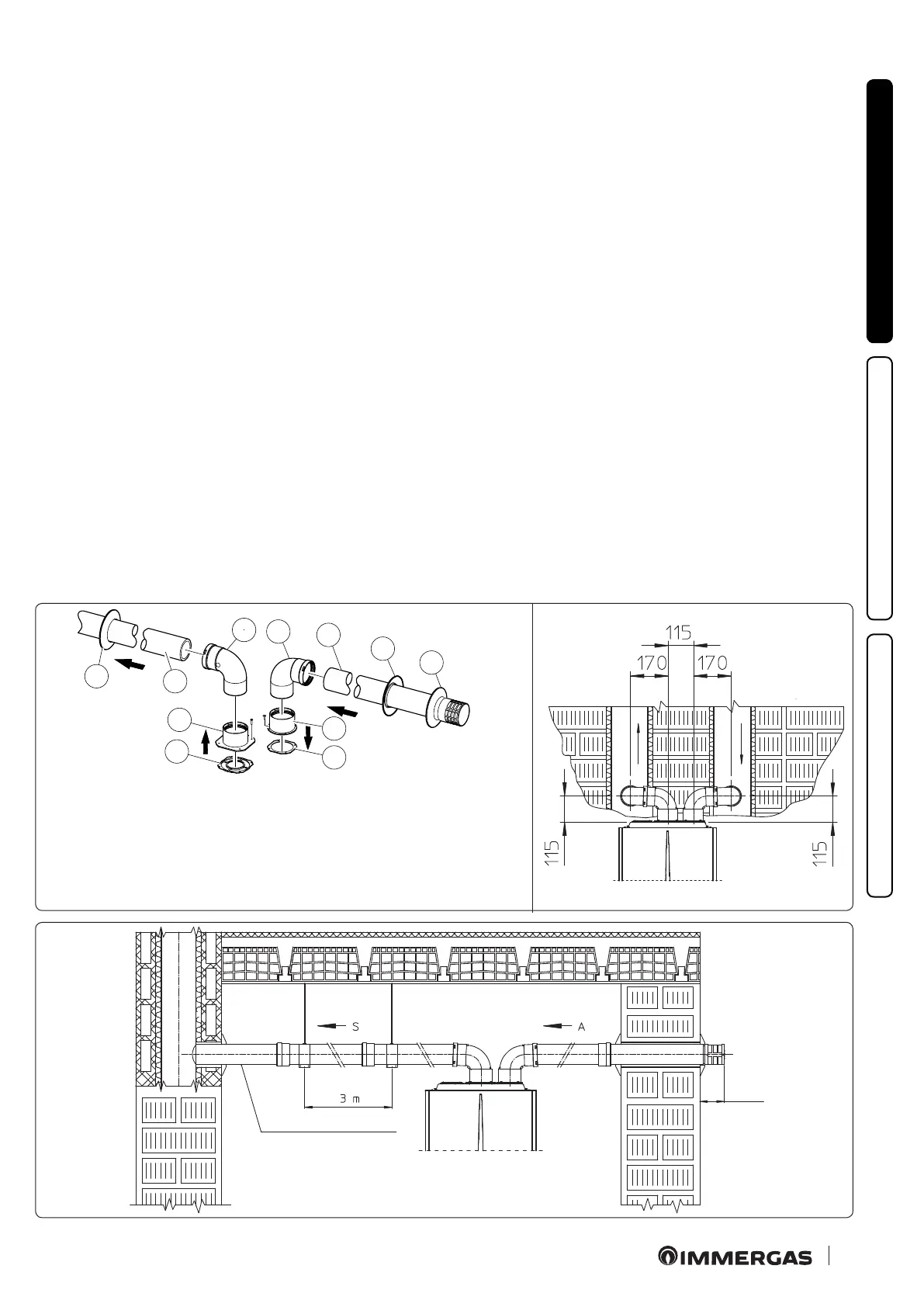
1.18 SEPARATOR KIT INSTALLATION.
Type C conguration, sealed chamber and fan assisted.
Separator kit Ø 80/80.
is kit allows air to come in from outside the building and the
exhaust to exit from the chimney, ue or intubated duct through
divided ue exhaust and air intake pipes. Combustion products
are expelled from pipe (S) (strictly in plastic, so as to resist acid
condensate). Air is taken in through duct (A) for combustion
(this is also in plastic). e intake pipe (A) can be installed either
on the right or le hand side of the central exhaust pipe (S). Both
ducts can be routed in any direction.
Assembly of separator kit Ø 80/80 (Fig. 26).
Install ange (4) on the central hole of the boiler, positioning
gasket (1) with the circular projections downwards in contact
with the boiler ange, and tighten using the hex screws with at
tip contained in the kit. Remove the at ange present in the lat-
eral hole with respect to the central one (according to needs) and
replace it with the ange (3), positioning the gasket (2) already
present in the boiler and tighten using the supplied self-threading
screws. Fit the male side (smooth) to the bends (5) in the female
side of the anges (3 and 4). Fit the intake terminal (6) with the
male side (smooth) in the female side of the bend (5) up to the
end stop, ensuring that the internal and external wall sealing plates
are tted. Fit the exhaust pipe (9) with the male end (smooth) to
the female end of the bend (5) up to the end stop; making sure
that the internal wall sealing plate has been tted, this will ensure
sealing and joining of the elements making up the kit.
Installation clearances (Fig. 27).
e minimum installation clearance measurements of the Ø 80/80
separator terminal kit have been stated in some limit conditions.
Extensions for separator kit Ø 80/80.
e maximum vertical straight length (without bends) that can
be used for Ø 80 intake and exhaust pipes is 41 metres, regardless
from whether they are used for intake or exhaust. e maximum
horizontal straight length (with bend in suction and in exhaust)
that can be used for Ø 80 intake and exhaust pipes is 36 metres,
regardless from whether they are used for intake or exhaust. Please
note the type of installation C
43
must be done with a natural
draught ue.
N.B.: to favour the removal of possible condensate forming in the
exhaust pipe, tilt the pipes towards the boiler with a minimum
slope of 1.5% (Fig. 28).
* to complete C
53
conguration, also provide for a “green range” roof discharge terminal.
e conguration on walls opposite the building is not allowed.
Minimum gradient 1.5 %
80 mm

Table of Contents

Other manuals for Immergas Victrix Tera 32 1

Related product manuals