EasyManua.ls Logo

Instron 68SC-05 - Page 34

Instron 68SC-05
56 pages
Print Icon
To Next Page IconTo Next Page
To Next Page IconTo Next Page
To Previous Page IconTo Previous Page
To Previous Page IconTo Previous Page
Loading...
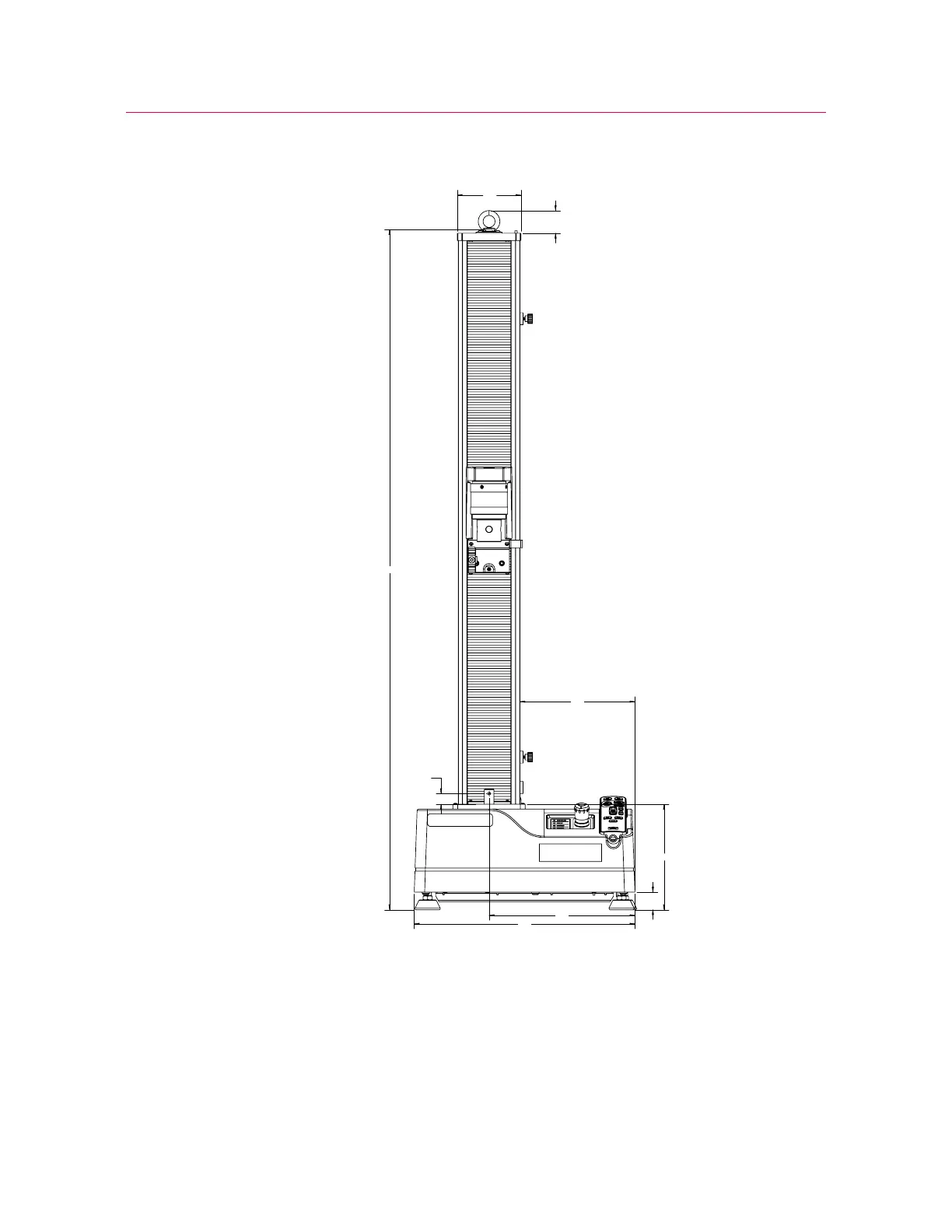
Chapter: Specifications
34 M10-17411-EN
Figure 3. 68SC-05 frame dimensions - front view
132
47
A
239
458
303
37
219
D

Related product manuals