EasyManua.ls Logo

Instron 68SC-05 - Page 35

Instron 68SC-05
56 pages
Print Icon
To Next Page IconTo Next Page
To Next Page IconTo Next Page
To Previous Page IconTo Previous Page
To Previous Page IconTo Previous Page
Loading...
35
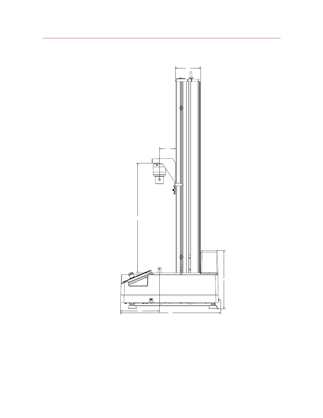
68SC-05 Dimensions and Weight
Product Support: www.instron.com
Figure 4. 68SC-05 frame dimensions - side view
156
613
239
356
E1 MIN
100
E2 MAX

Related product manuals