EasyManua.ls Logo

INVT GD350-2R2G-4 - Page 222

INVT GD350-2R2G-4
341 pages
Print Icon
To Next Page IconTo Next Page
To Next Page IconTo Next Page
To Previous Page IconTo Previous Page
To Previous Page IconTo Previous Page
Loading...
Goodrive350 series high-performance multi-function inverter Chapter 6
-217-
Function
code
Name
Detailed parameter description
Default
value
Modi
fy
switch-off delay
P26.35
AO2 output
selection
The same with P06.14
0
P26.36
AO3 output
selection
0
P26.37
Reserved
variables
0
P26.38
Lower limit of
AO2 output
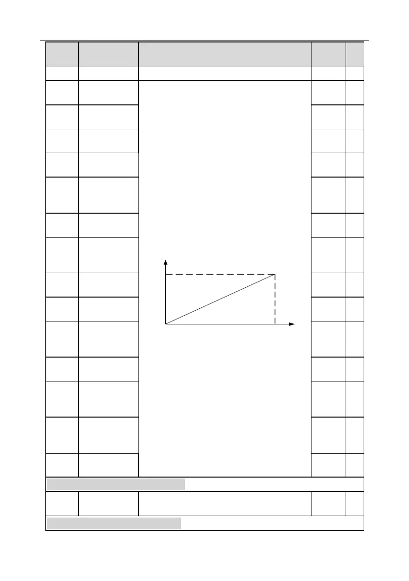
Above function codes define the relation between
output value and analog output. When the output
value exceeds the set max./min. output range, the
upper/low limit of output will be adopted during
calculation.
When analog output is current output, 1mA
corresponds to 0.5V voltage. In different
applications, 100% of output value corresponds to
different analog outputs.
10V (20mA)
0.0% 100.0%
AO
Setting range of P26.38: -100.0%P26.40
Setting range of P26.39: 0.00V10.00V
Setting range of P26.40: P26.38100.0%
Setting range of P26.41: 0.00V10.00V
Setting range of P26.42: 0.000s10.000s
Setting range of P26.43: -100.0%P26.45
Setting range of P26.44: 0.00V10.00V
Setting range of P26.45: P26.43100.0%
Setting range of P26.46: 0.00V10.00V
Setting range of P26.47: 0.000s10.000s
0.0%
P26.39
Corresponding
AO2 output of
lower limit
0.00V
P26.40
Upper limit of
AO2 output
100.0%
P26.41
Corresponding
AO2 output of
upper limit
10.00V
P26.42
AO2 output filter
time
0.000s
P26.43
Lower limit of
AO3 output
0.0%
P26.44
Corresponding
AO3 output of
lower limit
0.00V
P26.45
Upper limit of
AO3 output
100.0%
P26.46
Corresponding
AO3 output of
upper limit
10.00V
P26.47
AO3 output filter
time
0.000s
P26.48
P26.52
Reserved
variables
065535
0
P28 group Master/slave control functions
P28.00
P28.39
Reserved
variables
065535
0
P90 group Customized function group 1

Table of Contents

Related product manuals