EasyManua.ls Logo

ITT 3196 i-FRAME - Page 37

ITT 3196 i-FRAME
156 pages
Print Icon
To Next Page IconTo Next Page
To Next Page IconTo Next Page
To Previous Page IconTo Previous Page
To Previous Page IconTo Previous Page
Loading...
Checklist
Check Explanation/comment Checked
Check that all piping is
supported independently of, and
lined up naturally with, the pump
flange.
This helps to prevent:
Strain on the pump
Misalignment between the pump and the drive unit
Wear on the pump bearings and the coupling
Wear on the pump bearings, seal, and shafting
Keep the piping as short as
possible.
This helps to minimize friction losses.
Check that only necessary fittings
are used.
This helps to minimize friction losses.
Do not connect the piping to the
pump until:
The grout for the baseplate or
sub-base becomes hard.
The hold-down bolts for the
pump and the driver are
tightened.
Make sure that all the piping
joints and fittings are airtight.
This prevents air from entering the piping system or
leaks that occur during operation.
If the pump handles corrosive
fluids, make sure that the piping
allows you to flush out the liquid
before you remove the pump.
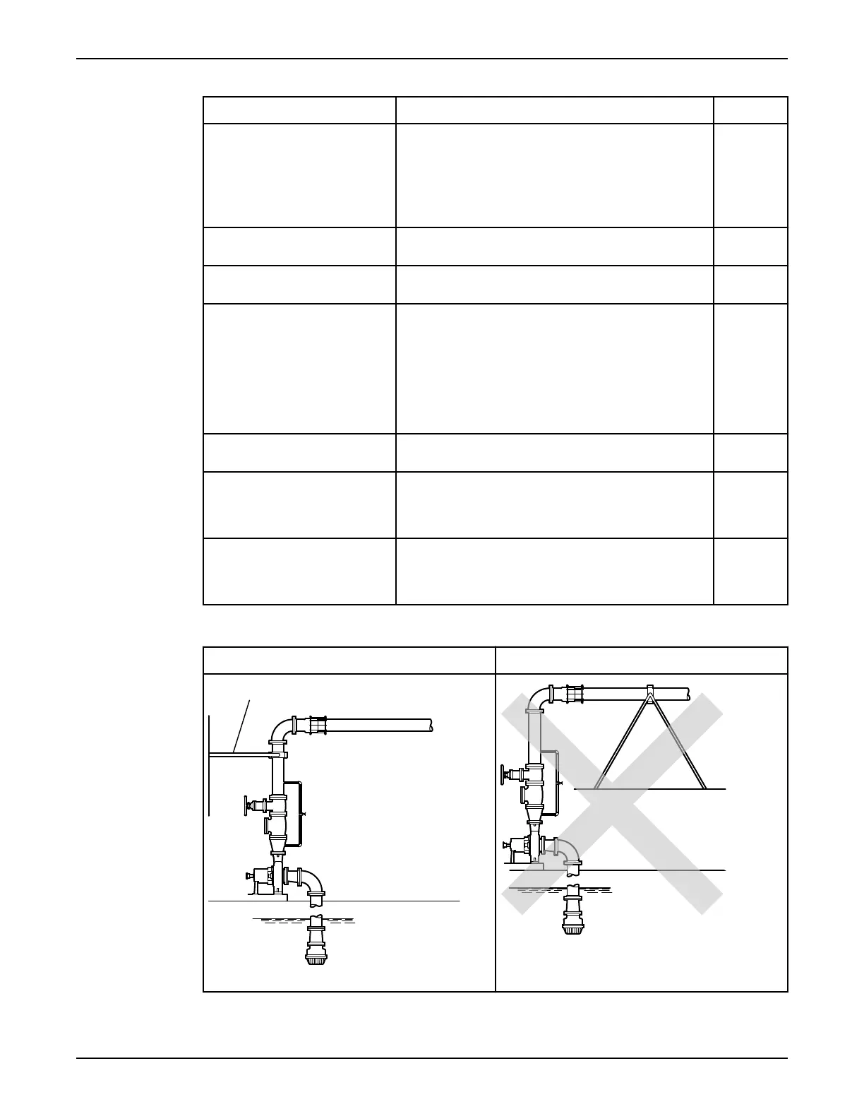
If the pump handles liquids at
elevated temperatures, make sure
that the expansion loops and
joints are properly installed.
This helps to prevent misalignment due to linear
expansion of the piping.
Example: Installation for expansion
Correct Incorrect
1
1. Expansion loop/joint
Installation
Model 3196 i-FRAME Installation, Operation, and Maintenance Manual 35

Table of Contents

Related product manuals