EasyManua.ls Logo

Jackson DISHSTAR HT-E - Specifications; Dimensions

Jackson DISHSTAR HT-E
70 pages
Print Icon
To Next Page IconTo Next Page
To Next Page IconTo Next Page
To Previous Page IconTo Previous Page
To Previous Page IconTo Previous Page
Loading...
07610-004-43-79-Q
2
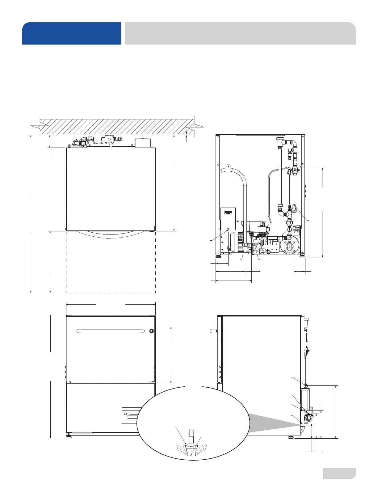
SPECIFICATIONS
HT-E DIMENSIONS
1/4
[7 mm]
26
[660 mm]
3 1/2
[88 mm]
24 1/4
[615 mm]
3 3/8
[87 mm]
9 3/4
[246 mm]
8
[202 mm]
BC
A
D
BACK
SIDEFRONT
TOP
B
C
A
D
14 1/4
[363 mm]
7 1/2
[190 mm]
3 7/8
[99 mm]
6 5/8
[169 mm]
3
[76 mm]
42 3/4
[1087 mm]
16 3/4
[426 mm]
DOOR OPEN
33 5/16
[846 mm]
14 1/4
[362 mm]
CLEARANCE
LEGEND
A - Electrical Connection
B - Water Inlet (with 6' Hose)
(3/4" Male GHT, connect to true
1/2" ID line, MIN 110 °F)
C - Drain Hose
(5/8" ID, install into 1 1/2" MIN Drain with Air-gap)
All dimensions from the floor
can be increased 1” using the
machine’s adjustable feet.
Install Machine
Drain Hose into
1 1/2 [38 mm]
MIN Floor Drain
or Sink
Do NOT install
Drain Hose to
“bottom” of Floor
Drain or Sink.
This can cause
splashback.
C
D - Chemical Port
24
[610 mm]

Other manuals for Jackson DISHSTAR HT-E

Related product manuals