EasyManua.ls Logo

Jacobsen LF557 4WD - Page 130

Jacobsen LF557 4WD
152 pages
Print Icon
To Next Page IconTo Next Page
To Next Page IconTo Next Page
To Previous Page IconTo Previous Page
To Previous Page IconTo Previous Page
Loading...
130
MCU J2-01Lift
MCU J2-03Backlap
MCU J2-02Mow
MCU J2-04Lower
Traction Sol –
Brake Release
U18
7 Gang
Option
Connector
100 - Og/Pk
20 - Bk
917 - Wh/Bu
900 - Rd/Wh
MCU J3-05Lights
J16-01
MCU J3-09
MCU J2-09
SOL1
SOL3
SOL2
SOL4
SOL5
SOL6
SOL8
340 - Tn/Bu
300 - Gy/Og
291 - Gy/Bk
350 - Tn/Gn
MCU J1-05Key-Run Signal
915 - Gy/Rd
MCU J2-08Key-Run Signal
915 - Gy/Rd
260 - Gy/Bk
Throttle Signal
MCU J1-11
420 - Bu/Ye
904 - Og907 - Og
903 - Rd/Wh
340 - Tn/Bu
300 - Gy/Og
291 - Gy/Bk
291 - Gy/Bk
300 Gy/Og
350 - Tn/Gn
251 - Bk
260 - Gy/Bk
20 - Bk
20 - Bk
20 - Bk
20 - Bk
20 - Bk
20 - Bk
20 - Bk
Traction Sol +
MCU J3-10
SOL7
252 - Gy/Og 252 - Gy/Og 251 - Bk
20 - Bk420 - Bu/Ye
Hyd Level
MCU J1-04
Hyd Filter
MCU J1-09
370 - Gy/Wh 370 - Gy/Wh
902 - Bk
U19
390 - Bu/Tn
100 - Rd/Wh
J16-02
20 - Bk
J16-03
100 - Rd/Wh
J16-04
20 - Bk
J16-05
400 - Ye
J16-06
410 - Gn
390 - Bu/Tn
20 - Bk
100 - Og/Pk
MCU J1-01Seat Switch
200 - Pu/Og 200 - Pu/Og
SW6
SW7
100 - Og/Pk100 - Og/Pk
200 - Pu/Og
100 - Og/Pk
L1
390 - Bu/Tn 20 - Bk
L2
21
SW1
21
SW5
Remove fuse
to disable cruise.
160 - Pu/Og
100 - Rd/Wh
410 - Gn
400 - Ye
410 - Gn
400 - Ye
J15-01
905 - Rd/Wh900 - Rd/Wh
J15-02
915 - Gy/Rd
J15-03
400 - Ye
J15-04
410 - Gn
J15-05
20 - Bk
J15-06
160 - Pu/Og
J9-01
917 - Wh/Bu
J9-02
902 - Bk
J9-03
J9-04
903 - Rd/Wh
431 - Rd
436 - Gy/Rd
442 - Ye
441 - Gn
434 - Bk
445 - Rd
443 - Wh
605 - Bk
604 - Rd
906 - Og 610 - Gn
F6
F10
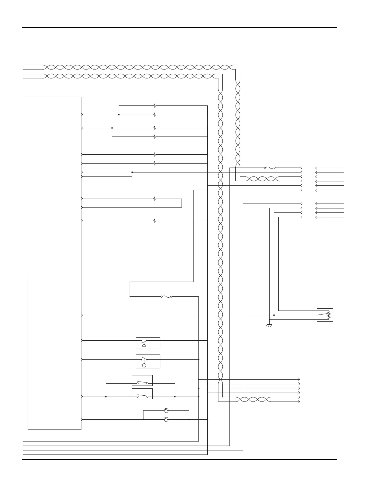
LIGHTWEIGHT FAIRWAY MOWER
62.1 Electrical Schematic
Tier 4 Final / Stage 5 Solenoid Schematic
Serial No. All

Related product manuals