EasyManua.ls Logo

JUMO diraTRON 108 - Page 25

JUMO diraTRON 108
104 pages
Print Icon
To Next Page IconTo Next Page
To Next Page IconTo Next Page
To Previous Page IconTo Previous Page
To Previous Page IconTo Previous Page
Loading...
25
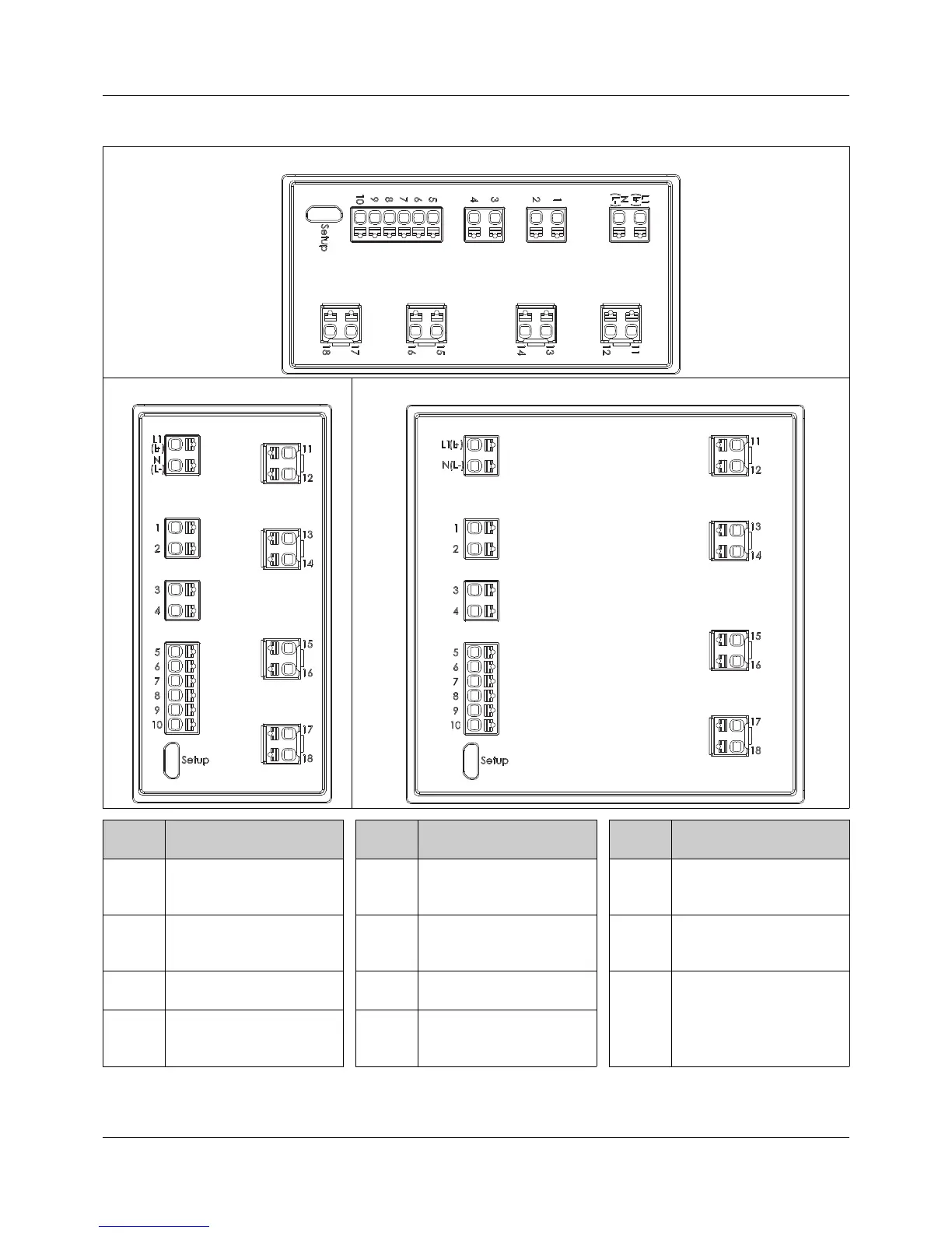
3 Electrical connection
Types 702112 (format 108H), 702113 (format 108Q), 702114 (format 104)
Type 702113 (96 mm × 48 mm)
Type 702112 (48 mm × 96 mm) Type 702114 (96 mm × 96 mm)
(1)
(2)
(3)(4)
(1)
(2)
(3)
(4)
(1)
(2)
(3)
(4)
Termi-
nals
Connection Termi-
nals
Connection Termi-
nals
Connection
1, 2 Output 1 (relay) 9, 10 Input 1 (for potential-free
contact) or output 3 (logic
output)
17, 18 (4) = option 4: output 7 (re-
lay, logic output or
PhotoMOS
®
relay)
3, 4 Output 2 (relay) 11, 12 (1) = option 1: output 4
(logic output) or RS485 in-
terface
L1(L+),
N(L-)
Voltage supply
5-8 Analog input 13, 14 (2) = option 2: output 5 (re-
lay, logic or analog output)
Setup
(USB)
PC (setup program)
8, 10 Input 2 (for potential-free
contact)
15, 16 (3) = option 3: output 6 (re-
lay, logic output or
PhotoMOS
®
relay)

Table of Contents

Other manuals for JUMO diraTRON 108

Related product manuals