EasyManua.ls Logo

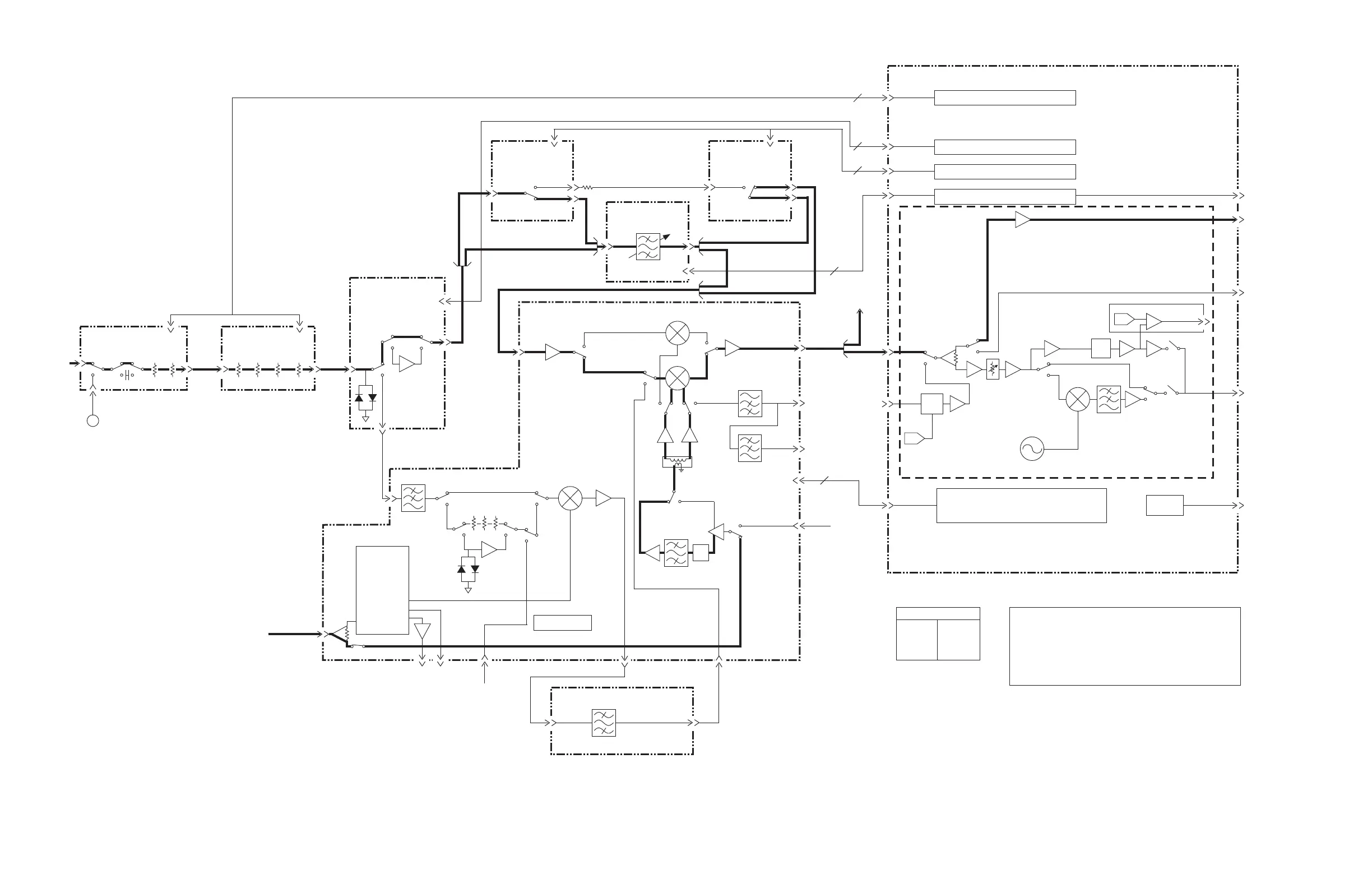
Keysight N9010B - RF Highband Path #1 Block Diagram

Keysight N9010B
598 pages
Print Icon
To Next Page IconTo Next Page
To Next Page IconTo Next Page
To Previous Page IconTo Previous Page
To Previous Page IconTo Previous Page
Loading...
OPTION 508, 513, 526 mW N9010B EXA
(Highband Path #1 - Input signals 3.6 GHz to 13.6 GHz)
RF BLOCK DIAGRAM
RF (High Freq #1)
BLOCK DIAGRAM
A9 INPUT
ATTENUATOR A
A15 FRONT END CONTROLLER
P/O Enhanced
Front End
Controller
A13A1 BANDPASS FILTER
A10 INPUT
ATTENUATOR B
A11 LOWBAND
SWITCH
A12 YTF
SW1
(Option MPB)
SW2
(Option MPB)
A13 FRONT END
30 dB
2 dB
2 dB
6 dB
1
1
C
C
2
2
10 dB
-28 dBm
-38 dBm
20 dB
6 dB
0 - 24 dB
+20 dB
Cal Signal
From A16 Reference
4800 MHz, -28 dBm
or
50 MHz, -25 dBm
13.6 GHz - 26.5 GHz Path
J7
J9
J8
J1
3.6 GHz - 13.6 GHz Path
3.6 GHz - 26.5 GHz
3 Hz - 3.6 GHz
4 GHz
+30 dB
-46 dBm
Preamp
Mixer 3
Mixer 2
Mixer 1
Preamp
Electronic Attenuator
8.3 GHz -
14 GHz
+18 dBm
To A2
Analog IF
2nd LO
4800 MHz
3 - 15 dBm
Switch position shown
for input signals
8.4 - 13.6 GHz
W5
from A16
Reference Bd
260 MHz - 400 MHz
120 MHz
LPF
8.3 - 14 GHz
W19
W10
W11
W9
W3
J900
AUX
IF OUT
J901
J902
IF In
W36
W15
W7
IF OUT
322.5 MHz
-32 dBm
W17
J903
J102
J301
to AIF
322.5 MHz
-33 dBm
W37
W39
to rear
panel
Option CR3
2nd IF
-37 dBm
Burst
Trigger
J1100
W16
W18
W30
W22
W31
J800
J700
J801
J300 J302
W35
W33
W34
W8
W32
AT1
Preselector
J3
J3J5
J10
J11
J6
ATTENUATOR CONTROL
LOW BAND SWITCH CONTROL
PRESELECTOR BYPASS CONTROL
PRESELECTOR DRIVER CONTROL
X2
LOG
DET
J
ALIGNMENT
THERMOMETER
RF
Input
VCO
+10 to
-10 mA
DAC
DAC
LO
DISTRIBUTION
FOOTNOTES
BIAS
TEE
MIXER BIAS, AMP BIAS,
PREAMP BIAS, E-ATTEN CONTROL,
SWITCH CONTROL, 1st LO POWER OPTIMIZATION
A13W1
A13W2
W20
J2
J4
5
5
1
3
1, 2, 3
3
5
4
3
W4 +15 dBm
IF
Out
J2
ECAL In
IF INIF OUT
AUX LO
+10 dBm
AUX LO
+3 dBm
block_exab_rf_hi1
Center: 5.1 GHz
3 dB BW: 150 MHz
from A14
LO Synthesizer
J4
J12
J2
SWEEP
RAMP
-52 dBm
If Option MPB
and bypassed,
-55 dBm
J1
J13
IF OUT from A13
NOTE: Power levels based on these settings:
Mode: Spectrum Analyzer unless specified differently
Input Signal 4.8 GHz Calibrator (Press Input/Output, RF Calibrator, 4.8 GHz)
Center Frequency 4.8 GHz
Span 0 Hz
Input Attenuation 10 dB
Preamp OFF
Auto Align OFF after initial Auto Align
1
IF Path IF Freq.
10 MHz
25 MHz
40 MHz
322.5 MHz
322.5 MHz
250 MHz
AUX IF OUT is only available
with Option CR3 and/or CRP
Units with any of the following options:
CR3, CRP, MPB, B40, DP2
Units without any of the following options:
CR3, CRP, MPB, B40, DP2
Units with any of the following options:
B40, MPB, DP2
Signal levels above 3 GHz include cable loss
of measurement system
2
3
4
5
W38
Option B40
to Digital IF
Mode = I/Q Analyzer
IF Path 40 MHz
250 MHz, -39 dBm

Table of Contents

Other manuals for Keysight N9010B

Related product manuals