EasyManua.ls Logo

Kohler 20RESA - Frequency Adjustment Procedures; Frequency Adjustment Steps; Engine Speed Gain Adjustment for Governor

Kohler 20RESA
440 pages
To Next Page IconTo Next Page
To Next Page IconTo Next Page
To Previous Page IconTo Previous Page
To Previous Page IconTo Previous Page
Loading...
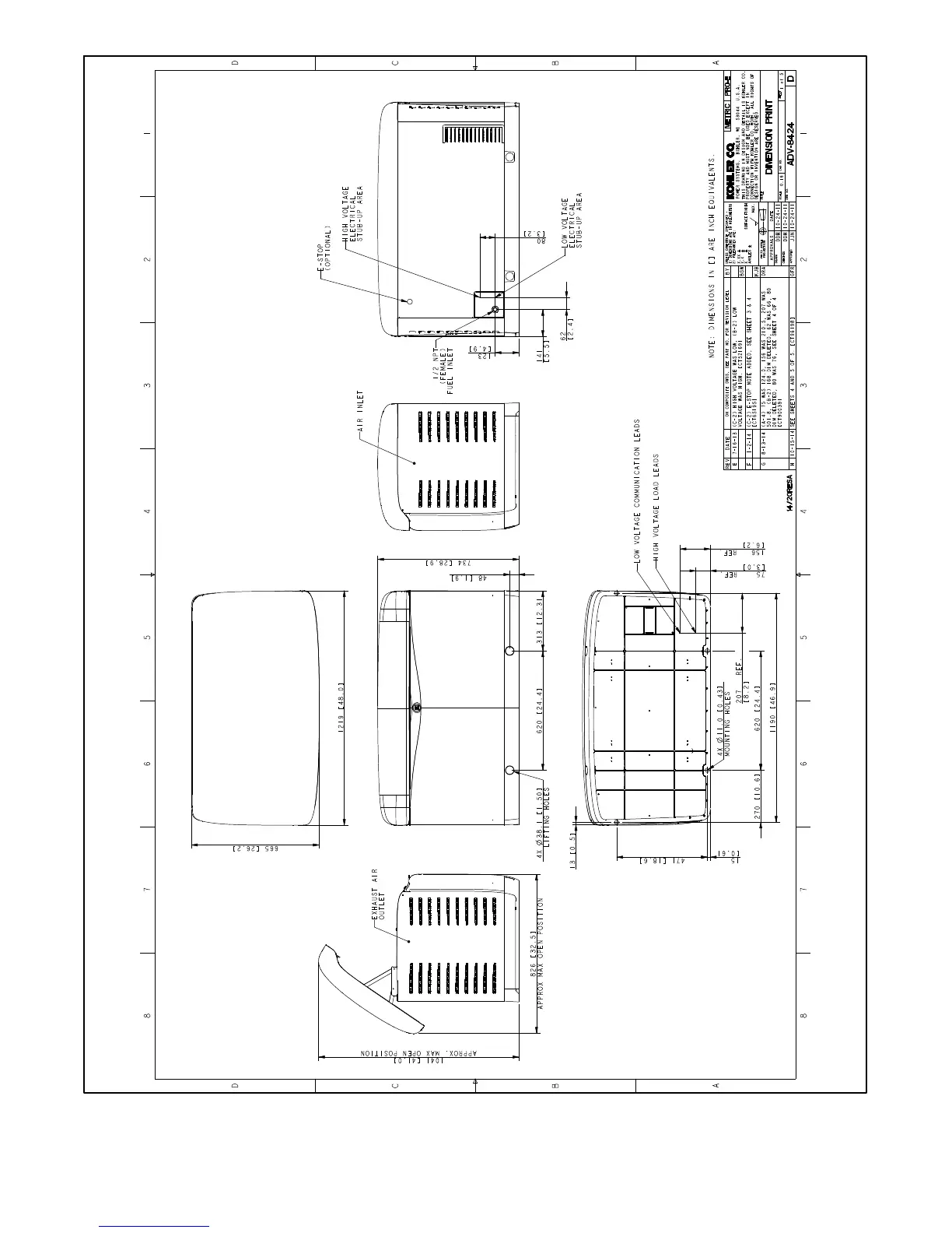
TP-6803--FR 1/15 45Section 2 Plans et schémas
Figure 2 -2 Plan coté, ADV-8424, feuille 1 de 5

Table of Contents

Other manuals for Kohler 20RESA

Related product manuals