EasyManua.ls Logo

Kohler 20RESA - Generator Protection Parameters

Kohler 20RESA
440 pages
To Next Page IconTo Next Page
To Next Page IconTo Next Page
To Previous Page IconTo Previous Page
To Previous Page IconTo Previous Page
Loading...
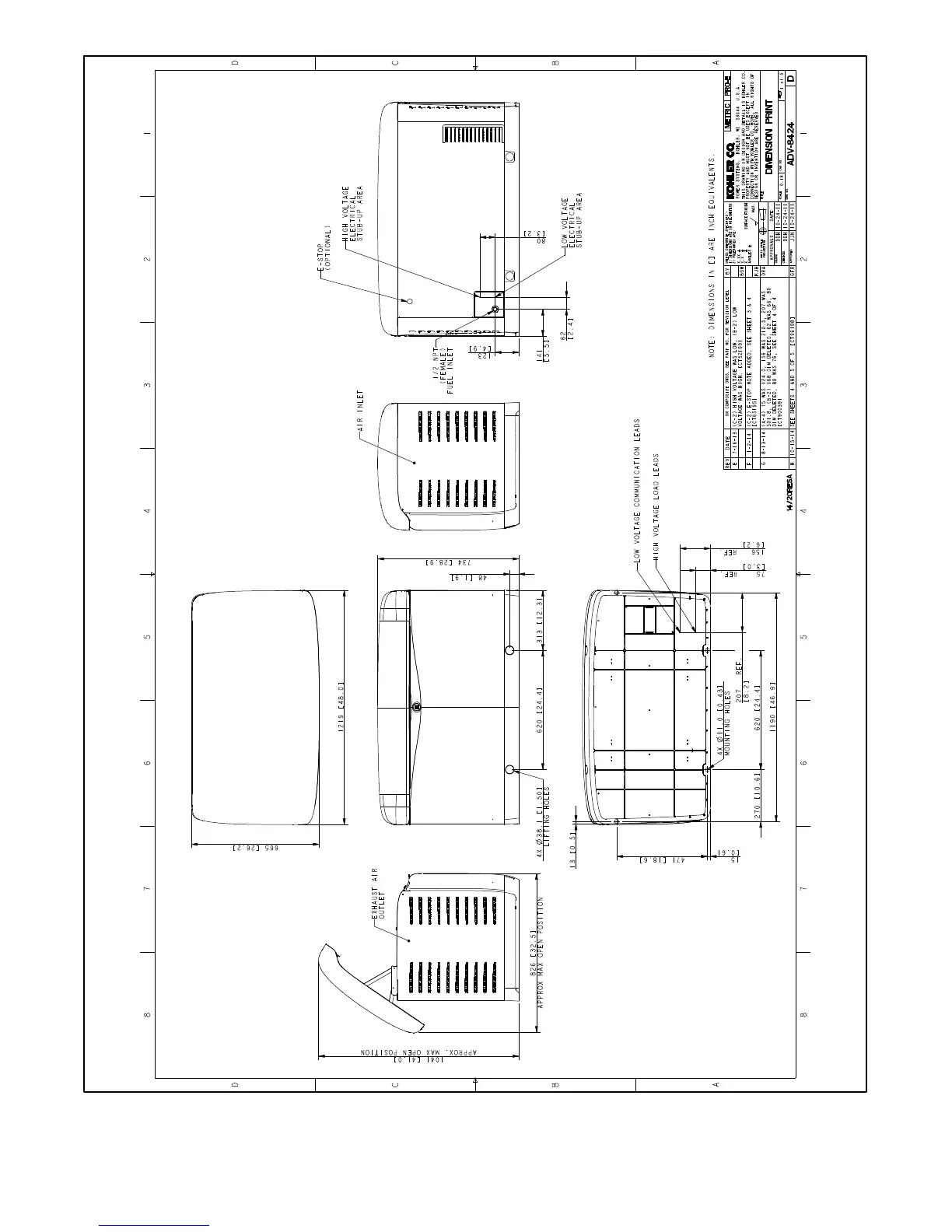
TP-6803 1/1544 Section 2 Drawings and Diagrams
Figure 2-2 Dimension Drawing ADV-8424, Sheet 1 of 5

Table of Contents

Other manuals for Kohler 20RESA

Related product manuals