EasyManua.ls Logo

KSB PumpDrive - 7.2.4 Energy optimisation; 7.2.4.1 Dynamic pressure setpoint compensation

KSB PumpDrive
162 pages
Print Icon
To Next Page IconTo Next Page
To Next Page IconTo Next Page
To Previous Page IconTo Previous Page
To Previous Page IconTo Previous Page
Loading...
7.2.4 Energy optimisation
7.2.4.1 Dynamic pressure setpoint compensation
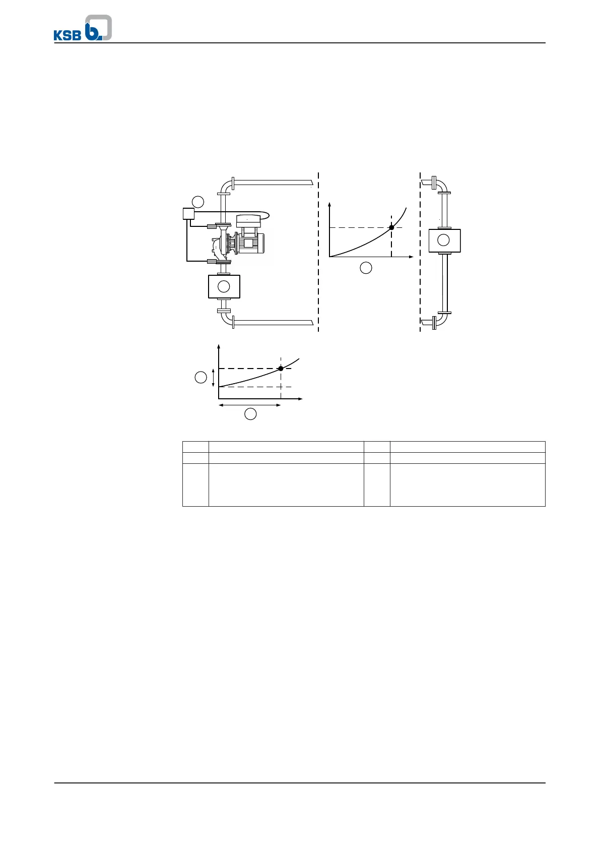
The pressure/differential pressure control with dynamic pressure setpoint
compensation function compensates pipe friction losses, which need to be considered
when the pressure/differential pressure sensor is installed close to the pump. This
ensures a virtually constant pressure at the consumer (e.g. heater) almost regardless
of the flow.
1
2
Δp
3
Q
P
4
P
Q
5
6
Fig. 45: Differential pressure control with dynamic pressure setpoint compensation
1 Heat generator 2 Consumer
3 Differential pressure sensor 4 Piping curve
5 Dynamic pressure setpoint
compensation function: Setpoint
compensation (3-4-2-2) in unit
[3-2-2-1]
6 Dynamic pressure setpoint
compensation function: Volume
flow rate (3-4-2-1) [%]
PumpDrive must be supplied with the signal of a pressure or differential pressure
sensor and the current flow rate as reference input variables for the dynamic
pressure setpoint compensation function. The method used for determining the flow
rate for setpoint compensation depends on the PumpDrive model (Basic/Advanced)
and its parameterisation. The reference variable for the dynamic pressure setpoint
compensation function can be determined four different ways:
Based on speed
Flow rate estimation based on the power (on PumpDrive Advanced only)
Flow rate estimation based on the differential pressure (on PumpDrive Advanced
only)
Flow rate measured by flow rate sensor via analog input
7.2.4.1.1 Parameterisation of the dynamic pressure setpoint compensation function
on PumpDrive Basic
The following parameters are required for parameterisation of the dynamic pressure
setpoint compensation function on a PumpDrive Basic model using flow rate
estimation based on the speed:
7 Commissioning/shutdown
PumpDrive
85 of 162

Table of Contents

Related product manuals