EasyManua.ls Logo

KTR ROTEX GS - Expansion Hubs (Type 9.0)

KTR ROTEX GS
36 pages
Print Icon
To Next Page IconTo Next Page
To Next Page IconTo Next Page
To Previous Page IconTo Previous Page
To Previous Page IconTo Previous Page
Loading...
KTR Kupplungstechnik
GmbH
D-48407 Rheine
ROTEX
®
GS
Operating/mounting instructions
KTR-N
Sheet:
Edition:
45510 EN
13of36
15
Please note protection
mark ISO 16016.
Drawn: 15.10.12 Pz Replaced for: KTR-N valid from 08.02.12
Verified: 29.10.12 Pz Replaced by:
1 Technical Data
Expansion hubs
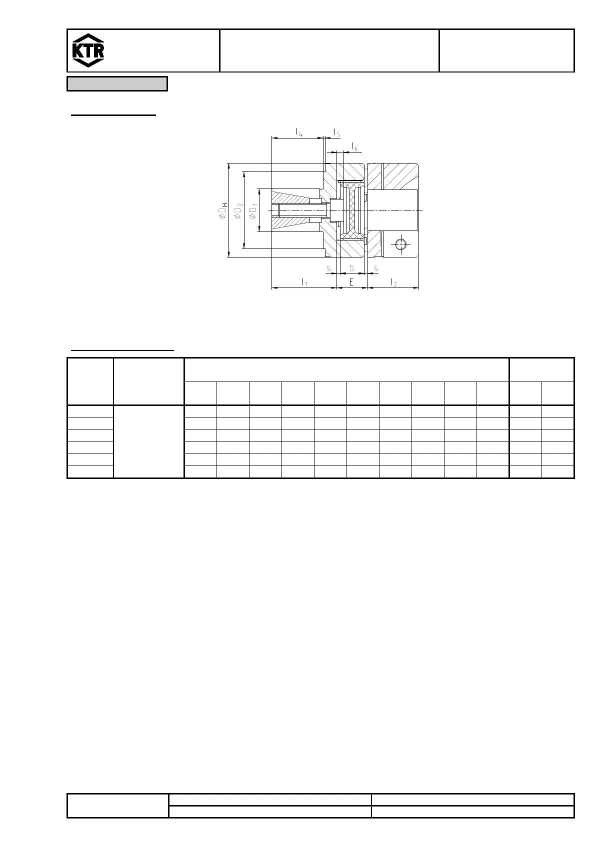
Illustration 9: ROTEX
®
GS, expansion hubs (type 9.0) with clamping hub
1)
Table 11: Dimensions
Size
Spider
(part 2)
Torques
[Nm]
Dimensions [mm]
Clamping
screw
D
1
D
2
D
H
l
1
l
4
l
5
l
6
E b s M T
A
9
Figures
see table 2
10 - 20 20 11 - 0 10 8 1,0
M4 2,9
12 10 20 25 19 14 1,5 2 12 10 1,0
M4 2,9
14 12 24 30 18,5
12,5
3 2 13 10 1,5
M4 2,9
19 20 35 40 28 20 1 0 16 12 2,0
M6 10
24 25 45 55 38 30 1 4 18 14 2,0
M8 25
28 35 55 65 44 36 1 5 20 15 2,5
M10
49
1) The expansion hub can be combined with other hub types being the opposite side, too. l
2
depends on the hub design. For further hub
designs see chapter 4.1.
2) For coupling selection – see ROTEX
®
GS catalogue
AT T E N T I O N !
Transmittable friction torques for D
1
on request (depending on the hollow shaft).
AT T E N T I O N !
Expansion hubs without keyway are not permissible for applications according to
DIN EN ISO 13849, part 2.

Other manuals for KTR ROTEX GS

Related product manuals