EasyManua.ls Logo

KTR ROTEX GS - Technical Data; Standard Shaft Coupling

KTR ROTEX GS
36 pages
Print Icon
To Next Page IconTo Next Page
To Next Page IconTo Next Page
To Previous Page IconTo Previous Page
To Previous Page IconTo Previous Page
Loading...
KTR Kupplungstechnik
GmbH
D-48407 Rheine
ROTEX
®
GS
Operating/mounting instructions
KTR-N
Sheet:
Edition:
45510 EN
3of36
15
Please note protection
mark ISO 16016.
Drawn: 15.10.12 Pz Replaced for: KTR-N valid from 08.02.12
Verified: 29.10.12 Pz Replaced by:
1
Technical Data
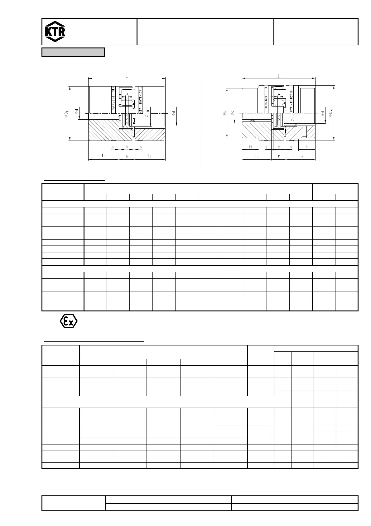
Standard shaft coupling
Illustration 1: ROTEX
®
GS, size 5 - 38 Illustration 2: ROTEX
®
GS, size 42 - 90
Table 1: Dimensions
Size
Dimensions [mm] Setscrew
1)
D D
H
d
H
L l
1
; l
2
M / N
E b s a G t
Hub material - Aluminium (Al-H)
5 - 10 - 15 5 - 5 4 0,5 4,0 M2 2,5
7 - 14 - 22 7 - 8 6 1,0 6,0 M3 3,5
9 - 20 7,2 30 10 - 10 8 1,0 1,5 M4 5,0
12 - 25 8,5 34 11 - 12 10 1,0 3,5 M4 5,0
14 - 30 10,5 35 11 - 13 10 1,5 2,0 M4 5,0
19 - 40 18 66 25 - 16 12 2,0 3,0 M5 10
24 - 55 27 78 30 - 18 14 2,0 3,0 M5 10
28 - 65 30 90 35 - 20 15 2,5 4,0 M8 15
38 - 80 38 114 45 - 24 18 3,0 4,0 M8 15
Hub material - Steel (St-H)
42 85 95 46 126 50 28 26 20 3,0 4,0 M8 20
48 95 105 51 140 56 32 28 21 3,5 4,0 M8 20
55 110 120 60 160 65 37 30 22 4,0 4,5 M10 20
65 115 135 68 185 75 47 35 26 4,5 4,5 M10 20
75 135 160 80 210 85 53 40 30 5,0 5,0 M10 25
90 160 200 104 245 100 62 45 34 5,5 6,5 M12 30
1)
P R E C A U T I O N !
For the applications in hazardous areas the setscrews to fasten the hubs as well as all screw connections
have to be secured against self-slackening additionally, e. g. by glueing with Loctite (medium-tight).
Table 2: Torques and finish bores
Size
Spider (part 2)
1)
Rated torque [Nm]
Unbored
Finish bore[mm] –Hub type
d
min.
1.0
d
max.
1.1, 1.2
d
max.
2.0, 2.1
d
max.
80 Sh-A-GS
92 Sh-A-GS
98 Sh-A-GS
64 Sh-D-GS
72 Sh-D-GS
5 0,3 0,5 0,9 0,2
2)
- - 2 - 6 5
7 0,7 1,2 2,0 2,4 - - 3 7 7 7
9 1,8 3,0 5,0 6,0 - - 4 10 11 11
12 3,0 5,0 9,0 12,0 - - 4 12 12 12
14 4,0 7,5 12,5 16,0 - - 5 16 16 16
1.0, 1.1
d
max.
2.5
d
max.
2.6
d
max.
19 4,9 10,0 17,0 21 - x 6 24 24 24
24 - 35 60 75 97
4)
x 8 28 28 28
28 - 95 160 200 260
4)
x 10 38 38 38
38 - 190 325 405 525
4)
x 12 45 45 45
42 - 265 450 560 728
4)
x 14 55 50 45
48 - 310 525 655 852
4)
x 15 62 55 55
55 - 410 685 825 7072
4)
x 20 74 68 68
65 - - 940
3)
1175 1527
4)
x 22 80 70 70
75 - - 1920
3)
2400 - x 30 95 80 80
90 - - 3600
3)
4500 - - 40 110 90 90
1) Maximum torque of coupling T
Kmax.
= Rated torque of coupling T
K Nenn.
x 2
with the exception of clamping hubs types 2.0 and 2.5 (see table 3)
2) Figures for spider 70 Sh-A-GS 3) Figures for spider 95 Sh-A-GS
4) When using the 72 Sh-D spider, we recommend to use hubs in steel.

Other manuals for KTR ROTEX GS

Related product manuals