EasyManua.ls Logo

L-Acoustics 8XT - Page 90

L-Acoustics 8XT
92 pages
Print Icon
To Next Page IconTo Next Page
To Next Page IconTo Next Page
To Previous Page IconTo Previous Page
To Previous Page IconTo Previous Page
Loading...
XTP_RM_ML_1
www.l-acoustics.com
23 fr
F
R
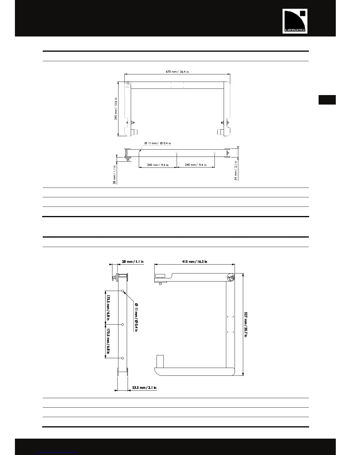
Référence ETR15
Dimensions (L x H x P) 670 x 345 x 54 mm Ö 26.4 x 13.6 x 2.1 in
Poids 5,5 kg Ö 12.1 lb
Limite mécanique du système 1 enceinte 115XT HiQ au maximum
Matériau Acier, revêtement poudre époxy noire
Référence ETR15P
Dimensions (L x H x P) 527 x 415 x 53,5 mm Ö 20.7 x 16.3 x 2.1 in
Poids 5,3 kg Ö 11.8 lb
Limite mécanique du système 1 enceinte SB15P au maximum
Matériau Acier, revêtement poudre époxy noire

Table of Contents

Related product manuals