EasyManua.ls Logo

Lenovo ThinkSystem SR550 - Recovery and RAS

Lenovo ThinkSystem SR550
120 pages
To Next Page IconTo Next Page
To Next Page IconTo Next Page
To Previous Page IconTo Previous Page
To Previous Page IconTo Previous Page
Loading...
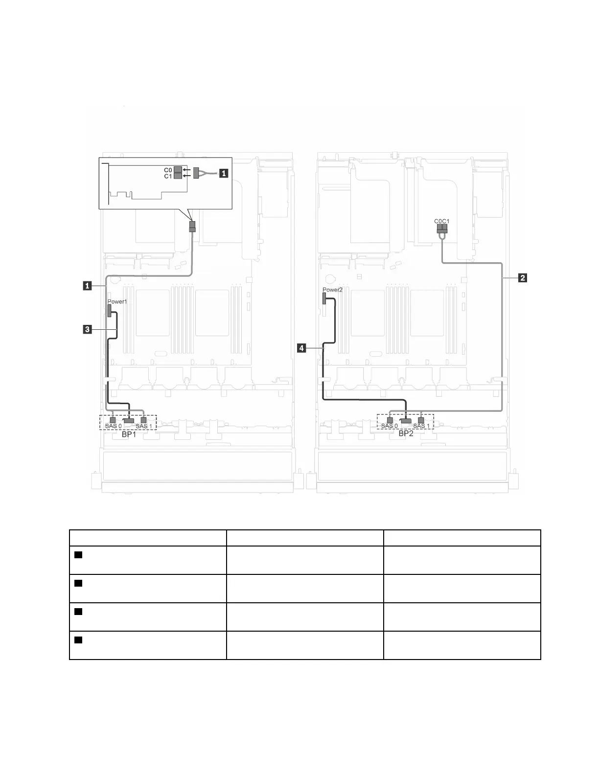
Server models with sixteen 2.5-inch hot-swap drives
Use this section to understand the cable routing for server models with sixteen 2.5-inch hot-swap drives.
Figure 22. Cable routing for server models with sixteen 2.5-inch hot-swap drives and 8i adapters
Cable
From To
1 SAS signal cable SAS 0 and SAS 1 connectors on the
backplane 1
C0 and C1 connectors on the RAID
adapter installed in PCIe slot 4
2 SAS signal cable SAS 0 and SAS 1 connectors on the
backplane 2
C0 and C1 connectors on the RAID
adapter installed in PCIe slot 1
3 Power cable Power connector 1 on the backplane Backplane 1 power connector on the
system board
4 Power cable Power connector 2 on the backplane Backplane 2 power connector on the
system board
Chapter 2. Server components 37

Table of Contents

Other manuals for Lenovo ThinkSystem SR550

Related product manuals