EasyManua.ls Logo

Limitorque LY Series - Figure 6.2 - Three-Phase with Control Package

Default Icon
63 pages
Print Icon
To Next Page IconTo Next Page
To Next Page IconTo Next Page
To Previous Page IconTo Previous Page
To Previous Page IconTo Previous Page
Loading...
LMAIM1501 LY Installation and Maintenance for LY 1001, LY 2001 and LY 3001 6-3
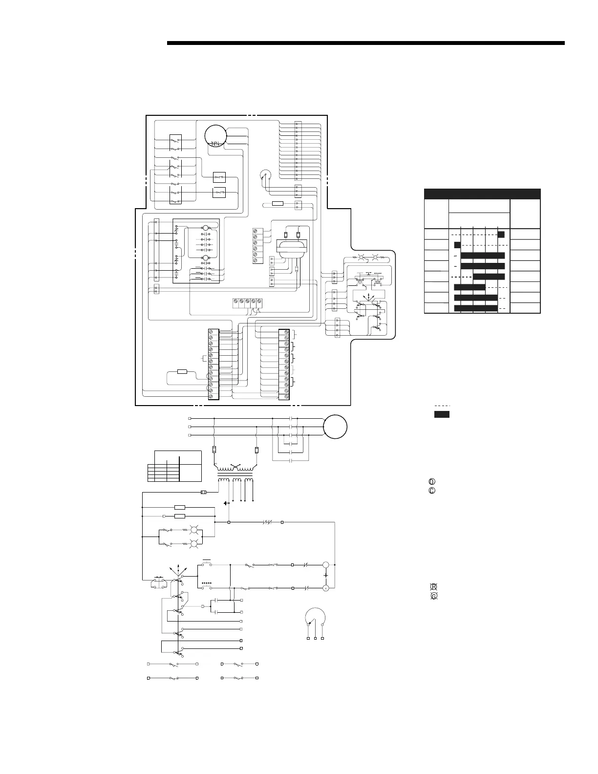
Figure 6.2 – Three-Phase with Control Package
HTR1
HTR2
R
G
LOCAL
REMOTE
O
O
C
TH.OL
SS
OF F
CPT
PB3
CLOSE
PB2
STOP
PB1
OPEN
LOCAL
OFF
REMOTE
BLU
YEL
BRN
ORG
GRY
PNK
SW323
PUSHBUTTON STATION
HTR1
CLOSE
OPEN
TS18
BLU
/RED
BLU/BLK
TS17
YEL/RED
YEL/BLK
RED
YEL/RED
ORG
BLK
YEL
PUR
BRN
GRN
PNK
BLK
BLU/RED
BLU
LIMIT SWITCH
BOTTOM
LS7
LS4
LS8
LS5
LS9
LS6
BLU/WHT
RED/BLK
LS3
LS2
TOP
TORQUE
SWITCHES
PUR/WHT
YEL/WHT
LS9
LS4
TS18
TS17LS8
LS5
PNK
REVERSING STARTER
SUPPLIED ON
SIDE MOUNTED
COMPARTMENT
T2
TH.OL
P2
(P)
(P)
T3
ORG
PUR
BRN
YEL/BLK
BLU/BLK
PUR/WHT
RED/BLK
YEL/WHT
BLU/WHT
PUR
P2
BLK
WHT
BLK
WHT
BLK/WHT
P1
BLK/WHT
RED/WHT
LS7
22
LS6
20
LS3
18
LS2
16
T1
P1
3ph
MOTOR
CPT
(H3)
(H2)
(H4)
O
O
T1
3ph
MOTOR
O
C
C
C
T2
T3
18V
18V
115V
FUSE
POT
POT
O
C
OPEN
STOP
4
2
CLOSE
3
COMMO
N
1
6
5
REMOTE IND
REMOTE IND
24
23
10/11
12
7
21
19
17
15
SPARE
LIMIT
SWITCHES
L1
L2
L3
8/9
27
2625
PB1
OPEN
PB2
STOP
PB3
CLOSE
BLU
18V
YELLOW
RED
YELLOW
BLUE
YELLOW
BLUE
WHITE
YELLOW
WHITE
BROWN
YELLOW/BLACK
BLUE/BLACK
BROWN
RED
RED
RED
BLUE
RED
P1
PURPLE
BLACK
BLACK
RED
GRAY
WHITE
GREEN
BROWN
ORANGE
GRAY
PINK
BLUE
BLUE
4
5
6
7
8
9
1
2
3
BRN
PUR
GRY
PNK
YEL
ORG
RED
BRN
RED
BRN
WH
T
GRN
1
2
3
4
1
2
3
4
1
2
3
4
5
6
7
8
9
10
11
12
16
17
18
19
20
21
22
23
REMOTE OPEN
REMOTE CLOSE
REMOTE STOP
REMOTE COMMON
SELECTOR SWITCH IN
REMOTE INDICATION
1
2
3
15
13
24
14
10
11
12
13
14
15
1
2
SPARE
LIMIT
SWITCH#2
SPARE
LIMIT
SWITCH#3
WHITE
BLACK
BLACK
HTR2
RES
RES
RES
RES
L1
L2
L3
SPARE
LIMIT
SWITCH#6
SPARE
LIMIT
SWITCH#7
RED
WH
T
115V
INCOMING
POWE
R
P2
FOR SIGNAL
CONVERTER
WHEN SUPPLIED
1
2
BLU
2
1
BLK/WHT
RED/WHT
3
2
5
6
1
1
2
4
BLACK/WHITE
PUR
ORG
PNK
BRN
YELLOW
WHITE
BLUE
WHITE
RED
BLACK
L1
L2
H1
H3
H2
H4
WHITE
YELLOW
YELLOW
BLUE
BLUE
WHITE
BLK
1
YEL
YEL
18V
BLACK
230V
500
H1 & H3 TO L1
H2 & H4 TO L2
415
380
1
A
B
C
D
E
TRANSFORMER TYPES
600
575
550
-
-
32
TAPS
-
-
460V
H3 TO H2, H1 TO
L1 & H4 TO L2
RED
PURPLE
WHITE
ALTERNATE STANDARD
1
2
3
25
26
27
28
29
30
POT (CCW)
POT (SWEEPER)
POT (CW)
2
PUR
BLU/WHT
YEL/WHT
C
O
YEL
PUR
BLU
BLU\BLK
YEL/BLK
PUR
BLK
WHT
BLK
WH
T
L1
L3
T3
T2
T1
L3
L2
L1
T1
T2
T3
L2
BLK/WHT
BLK/WHT
BLK/WHT
BRN
RED
BLK
BLK
BRN
RED
PUR/WHT
RED/BLK
BRN
ORG
RED
BLK
BLU
PUR
YEL
PNK
ORG
BRN
GRY
BUTTONS
AUX.
TERM.
LIGHTS
RED
WH
T
GRN
PUR
BLK
BLU
YEL
GRN
RED
WH
T
BRN
GRY
PNK
ORG
BLU/WHT
YEL/WHT
BLK
GRN
YEL/BLK
BLU
BLU/BLK
BLK
GRN
BLU
YEL/BLK
BLU/BLK
YEL YEL
RED RED
PNK
PUR
BLK
WH
T
WH
T
BLK
BLK
PUR/WHT
YEL/WHT
RED/BLK
BLU/WHT
PNK
PUR
BRN
ORG
BLK
BLU
BRN
RED
BLKBLK
BRN
RED
R
G
FUSE
FUSE
FUSE
FUSE
FUSE
BLACK
BROWN
RED
Limit Switch Contact Development
LIMIT
SWITCH
CONTACT
2
3
4
5
6
7
8
9
VALVE POSITION
FULL
OPEN
FULL
CLOSE
FUNCTION
SPARE
SPARE
OPEN LIMIT
IND LIGHT
INDICATION
INDICATION
CLOSED LIMIT
IND LIGHT
Valve shown in full open position
—Closing torque switch interrupts
TS18 —Opening torque switch interrupts
control circuit if mechanical overload
occurs during opening cycle.
TS17
control circuit if mechanical
overload
occurs during closing cycle.
NOTES
1. Open contact
2. Close contact
3. All limit switch trip points
are fully adjustable.
LEGEND
O — Open contact
C — Close contact
— Opening coil
— Closing coil
CPT — Control Power Transformer
+ — Mechanical interlock
TH. OL — Thermal overload contacts
SS — Selector switch (local-remote)
PB1 — Open pushbutton
PB2 — Stop pushbutton
PB3 — Close pushbutton
HTR1 — Space heater
HTR2 — Space heater (Side mounted compt. only)
POT — Slidewire transmitter
— Red indicating light
— Green indicating light
RES — Lamp Resistors
Flow Control Division
Limitorque Actuation Systems

Table of Contents