EasyManua.ls Logo

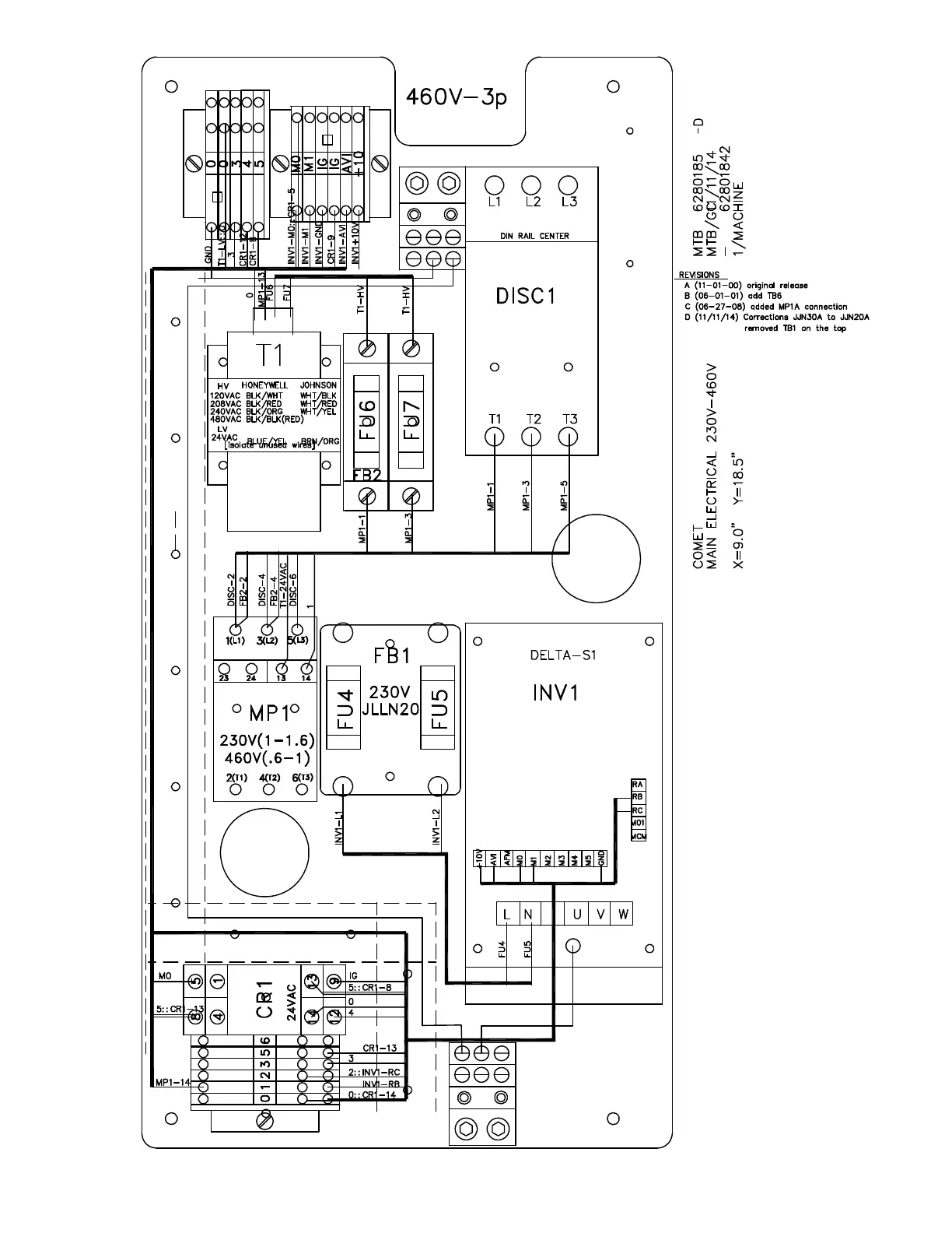
Maxi Comet Executive Exec-56-G - Main Electrical Panel 460 V 3 Phase

Default Icon
244 pages
Print Icon
To Next Page IconTo Next Page
To Next Page IconTo Next Page
To Previous Page IconTo Previous Page
To Previous Page IconTo Previous Page
Loading...
SC-18
Main Electrical Panel 460V 3 Phase
SC-TOC
INDEX
TOC

Table of Contents

Related product manuals