EasyManua.ls Logo

MELAG DAC Premium Plus - Space Requirements for Device

MELAG DAC Premium Plus
32 pages
Print Icon
To Next Page IconTo Next Page
To Next Page IconTo Next Page
To Previous Page IconTo Previous Page
To Previous Page IconTo Previous Page
Loading...
2 Installation requirements
6
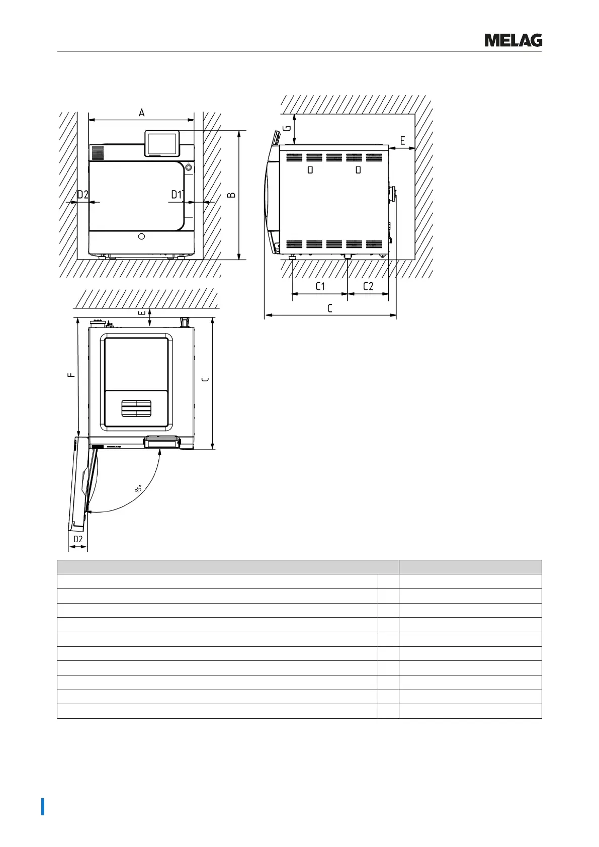
Space requirements
Dimensions
Width A 46 cm
Height B 56.5 cm
Depth C 69 cm
Clearance between the device feet C1 35 cm
Clearance from rear device foot up to the rear panel C2 17.6 cm
Min. clearance to the side D1 5 cm
Min. clearance to the side of the door hinge D2 14 cm
Min. clearance to the rear E 10 cm
Free area with a fully-opened door F 63 cm
Min. clearance to the top (extractable / with exhaust shaft) G 5 / 20 cm
The area above the steam sterilizer should be freely accessible in order to enable easy filling of the storage tank and
good ventilation. The steam sterilizer works with a cooler on the rear of the device for the cooling system. The function
and life-span of the steam sterilizer can be affected if the heat dissipation above the cooler is restricted in any way. As
such, MELAG advise against incorporating the steam sterilizer and is only possible if sufficient air circulation is ensured.

Related product manuals