EasyManua.ls Logo

Mendota FV36 - Installation; Planning and Installing the Fireplace

Mendota FV36
80 pages
Print Icon
To Next Page IconTo Next Page
To Next Page IconTo Next Page
To Previous Page IconTo Previous Page
To Previous Page IconTo Previous Page
Loading...
19
FV36 85-03-01014
INSTALLATION
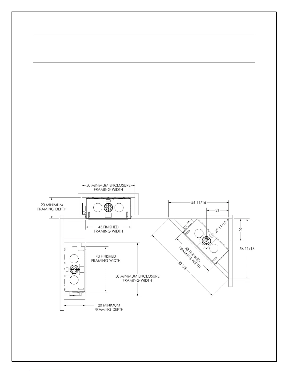
PLANNING THE INSTALLATION
Before Installing
When planning on fireplace installation, determine the following:
Where the fireplace is to be installed
Vent system configuration to be used
Gas supply piping
Electrical wiring
Framing and finishing details
Hearth protection pad requirements
Selecting Fireplace Location
When selecting a location for your fireplace, it is important to consider the required clearances to walls.

Table of Contents

Related product manuals