EasyManua.ls Logo

Mendota FV36 - Electrical Supply Requirement; AC Power Connection and DC Backup

Mendota FV36
80 pages
Print Icon
To Next Page IconTo Next Page
To Next Page IconTo Next Page
To Previous Page IconTo Previous Page
To Previous Page IconTo Previous Page
Loading...
39
FV36 85-03-01014
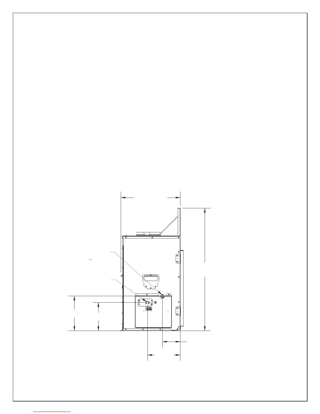
ELECTRICAL SUPPLY REQUIREMENT
Planning for AC 120VAC Connection
This fireplace is equipped with an internal three-wire (grounding) cable for protection against shock hazard
and should be hard-wired directly to a properly grounded three-wire home power supply cable within an
approved junction box or within this fireplace body. Do not cut or remove the grounding wire.
Electronic ignition system, dual blowers, and an accent light system are included in this Mendota direct vent
fireplace. These devices require constant electrical power except during power outages. A 120-volt electrical
service must be supplied at the fireplace location at the time of installation on the left side of this fireplace. It
must be electrically grounded in accordance with local codes, or in their absence, with the current edition of
the National Electric Code ANSI/NFPA 70.
Thermostatic function is included in the remote control. Therefore, no thermostat wire is required.
To connect the fireplace to the electrical supply, remove the cover plate from the box on the left side of the
fireplace. Use the three wire nuts that are supplied with the fireplace to connect the wires in the box to the
electrical supply:
The black wire must be connected to hot.
The white wire must be connected to neutral.
The green wire must be connected to ground.
After the wires are connected, push them into the box and reinstall the cover plate.
19 1/2
UNIT DEPTH
40 1/2
UNIT HEIGHT
9 3/8
10 3/4
5 7/8
11 1/2
ELECTRICAL SUPPLY INLET
120 VAC
GAS SUPPLY INLET
1
2
" FNPT

Table of Contents

Related product manuals