EasyManua.ls Logo

Mercury 175 EFI - Page 129

Mercury 175 EFI
631 pages
Print Icon
To Next Page IconTo Next Page
To Next Page IconTo Next Page
To Previous Page IconTo Previous Page
To Previous Page IconTo Previous Page
Loading...
CHARGING & STARTING SYSTEM
90-883728 JULY 2001 Page 2B-35
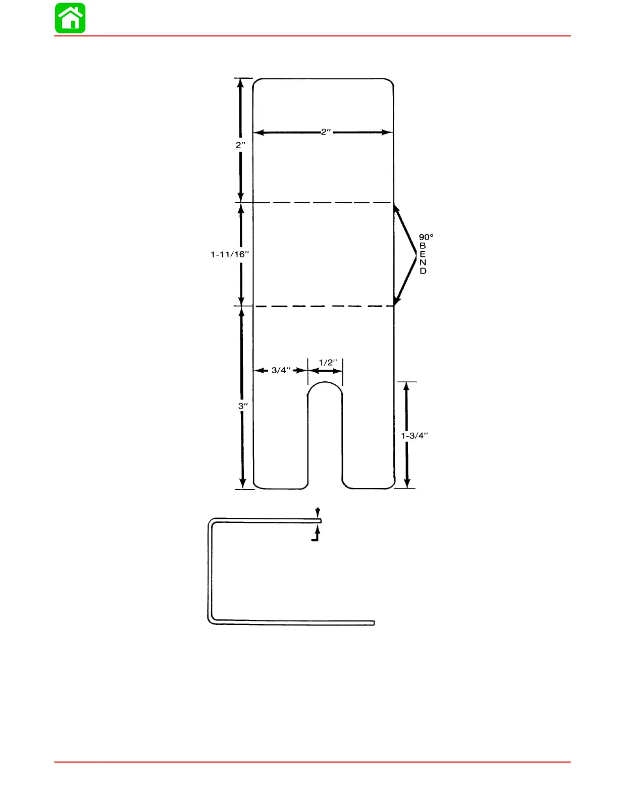
6. To prevent damage to brushes and springs when installing commutator end cap, it is
recommended that a brush retaining tool be made as shown:
METRIC SCALE
3”
2”
1-3/4”
1-11/16”
3/4”
1/2”
= 76.2mm
= 50.8mm
= 44.5mm
= 42.9mm
= 19.1mm
= 12.7mm
18-Gauge Sheet Metal
7. Lubricate bushing (located in commutator end cap) with one drop of SAE 10W oil. DO
NOT over lubricate.

Table of Contents

Related product manuals