EasyManua.ls Logo

Midmark Preva - Page 9

Default Icon
140 pages
Print Icon
To Next Page IconTo Next Page
To Next Page IconTo Next Page
To Previous Page IconTo Previous Page
To Previous Page IconTo Previous Page
Loading...
Preva Installation/Service Manual, 00-02-1577, Revision E01
6
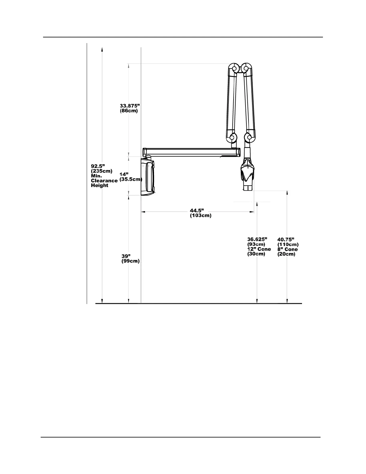
Figure 3
Cabinet
Mounting
Dimensions
82" reach not recommended for cabinet mount

Table of Contents

Other manuals for Midmark Preva

Related product manuals