EasyManua.ls Logo

Midway Offroad Thunder - Page 125

Default Icon
150 pages
Print Icon
To Next Page IconTo Next Page
To Next Page IconTo Next Page
To Previous Page IconTo Previous Page
To Previous Page IconTo Previous Page
Loading...
Parts 7-29
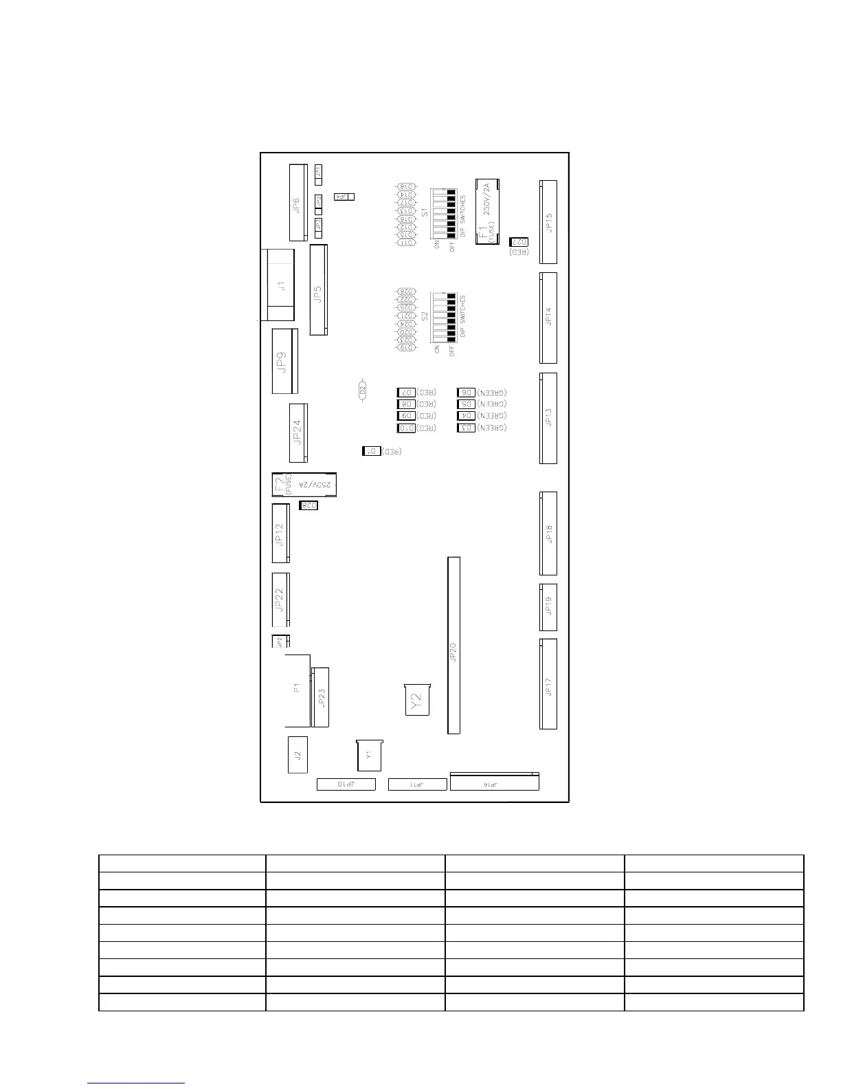
MagicBus Interface Board Assembly 04-12697.3
Field Replaceable Parts
Component Description Board Location Part Number
Crystal 6 MHz Y2
5520-16004-00
Diode 1N270 D11-15, D17-25, D28
5070-16229-00
Diode 1N5817, 1A D2
5070-09266-00
Fuse 5 x 20mm, 2ASB F1
5735-13853-00
Jumper 2-Pin JP1, JP2, JP3, JP4
5791-13045-00
Transistor 2N2369 NPN Q1
5190-15997-00
Transistor 2N3904 NPN Q5-Q6
5160-14035-00
Transistor ULN2064 NPN Q3-Q4
5160-14035-00

Related product manuals