EasyManua.ls Logo

Mitsubishi Electric FR-F740-00023

Mitsubishi Electric FR-F740-00023
341 pages
To Next Page IconTo Next Page
To Next Page IconTo Next Page
To Previous Page IconTo Previous Page
To Previous Page IconTo Previous Page
Loading...
316
Heatsink protrusion attachment procedure
7.4 Heatsink protrusion attachment procedure
P"5$&5$,#-.$/&0"5&.$45+05+&.$&#$&5$,7(-)+5B&0"5&/5$5+#059&"5#0&#?()$0&.$&#$&5$,7(-)+5&,#$&25&/+5#07'&+59),59&2'
.$-0#77.$/& 0"5& "5#0-.$%& 8(+0.($& (*& 0"5& .$45+05+& ()0-.95& 0"5& 5$,7(-)+56& P"5$& .$-0#77.$/& 0"5& .$45+05+& .$& #& ,(?8#,0
5$,7(-)+5B&50,6B&0".-&.$-0#77#0.($&?50"(9&.-&+5,(??5$9596
7.4.1 When using a heatsink protrusion attachment (FR-A7CN)
:(+&0"5&:;<:=`><>>>]_&0(&>_EF>B&#&"5#0-.$%&,#$&25&8+(0+)959&()0-.95&0"5&5$,7(-)+5&)-.$/&#&"5#0-.$%&8+(0+)-.($
#00#,"?5$0&[:;<L=SQ\6&:(+&#&8#$57&,)0&9.?5$-.($&9+#C.$/&#$9&#$&.$-0#77#0.($&8+(,59)+5&(*&0"5&"5#0-.$%&8+(0+)-.($
#00#,"?5$0&[:;<L=SQ\&0(&0"5&.$45+05+B&+5*5+&0(&#&?#$)#7&(*&O"5#0-.$%&8+(0+)-.($&#00#,"?5$0&[:;<L=SQ>F&0(&FF\O6
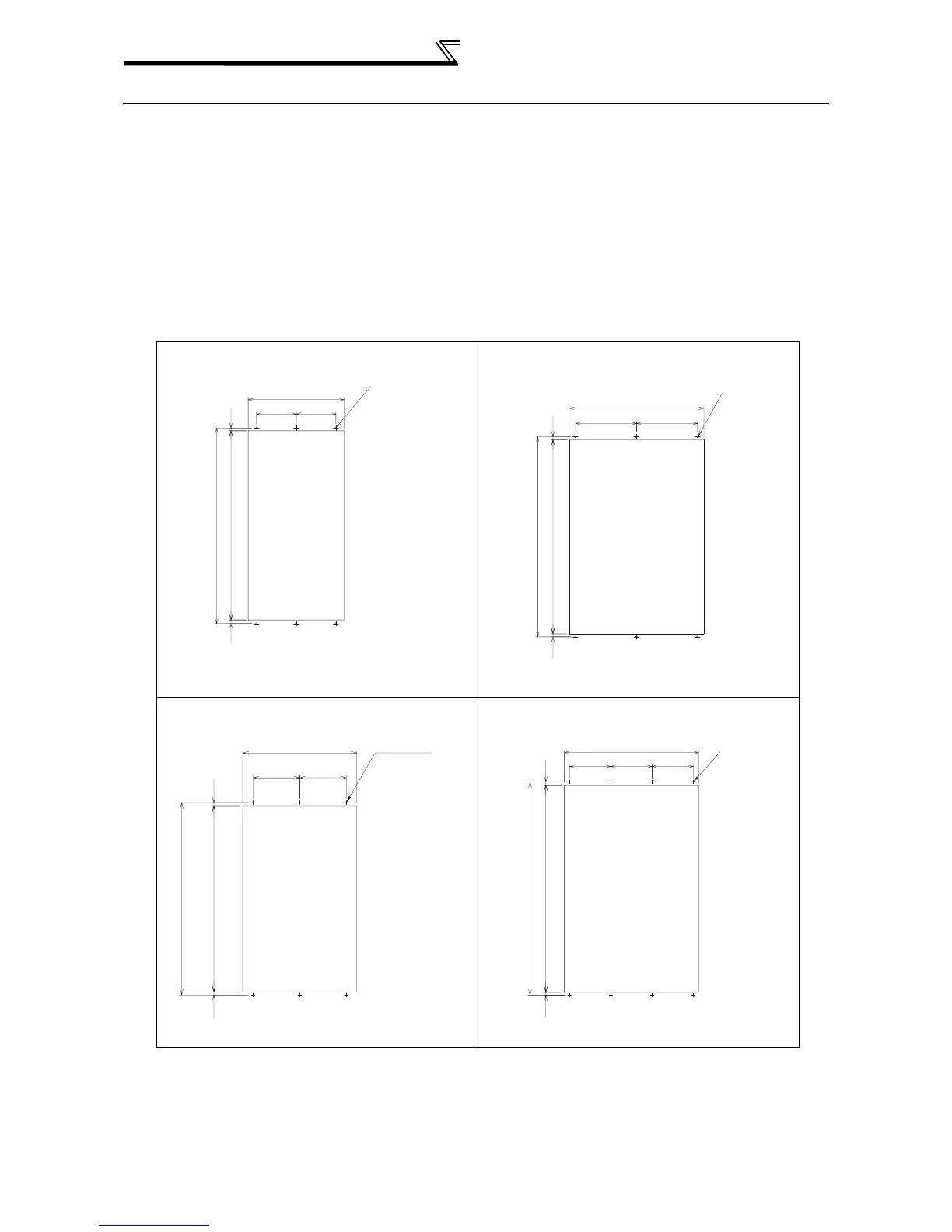
7.4.2 Protrusion of heatsink of the FR-F740-04320 or more
[F\ d#$57&,)00.$/
S)0&0"5&8#$57&(*&0"5&5$,7(-)+5&#,,(+9.$/&0(&0"5&.$45+05+&,#8#,.0'6
x#3DT3Q9XTX942XP#X9\!X
[T$.0g&??\
x#3DT3Q9XTXM9QXP#XN!XXP#XN\4X
[T$.0g&??\
x#3DT3Q9XTXQQXXP#X\NNX
[T$.0g&??\
x#3DT3Q9XTXWN2XP#!XW9XP#!2!2X
[T$.0g&??\
200 200
484
1395418
985
Hole
6-M10 screw
Hole
300 300
662
1595415
984
6-M10 screw
6-M10 screw
771
1300
21125821
Hole
315
315
8-M10 screw
300 300 300
976
21
150821
1550
Hole

Table of Contents

Other manuals for Mitsubishi Electric FR-F740-00023

Related product manuals