EasyManua.ls Logo

Mitsubishi Electric FR-F740-00023

Mitsubishi Electric FR-F740-00023
341 pages
To Next Page IconTo Next Page
To Next Page IconTo Next Page
To Previous Page IconTo Previous Page
To Previous Page IconTo Previous Page
Loading...
31
Connection of stand-alone option units
2
C5D5EF
2.4 Connection of stand-alone option units
!"5&.$45+05+&#,,580-&#&4#+.50'&(*&-0#$9<#7($5&(80.($&)$.0-&#-&+5K).+596
3$,(++5,0& ,($$5,0.($& C.77& ,#)-5& .$45+05+& 9#?#/5& (+& #,,.95$06& S($$5,0& #$9& (85+#05& 0"5& (80.($& )$.0& ,#+5*)77'& .$
#,,(+9#$,5&C.0"&0"5&,(++5-8($9.$/&(80.($&)$.0&?#$)#76
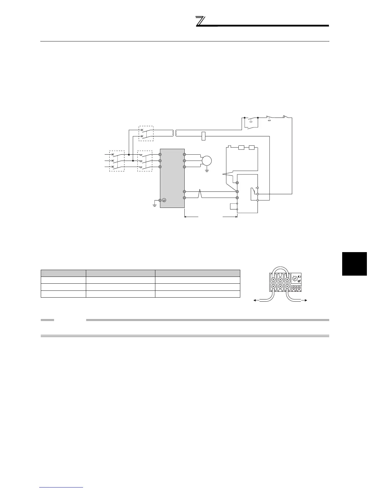
2.4.1 Connection of the brake unit (FR-BU2)
S($$5,0&0"5&2+#%5&)$.0&[:;<AT]\&#-&-"(C$&257(C&0(&.?8+(45&0"5&2+#%.$/&,#8#2.7.0'&#0&95,575+#0.($6
J!K G-11&'(*-1#&]<B?%&#Y*(,#(,&#FDhF#(8?&#;*=',<)L*1L#)&=*=(-)
cD&'-BB&1;&;#&](&)1<%#(,&)B<%#)&%<8d
hF S($$5,0&0"5&.$45+05+&05+?.$#7-&[dYeB&QY<\&#$9&2+#%5&)$.0&[:;<AT]\&05+?.$#7-&-(&0"#0&0"5.+&05+?.$#7&$#?5-&?#0,"&C.0"&5#,"&(0"5+6
[3$,(++5,0&,($$5,0.($&C.77&9#?#/5&0"5&.$45+05+&#$9&2+#%5&)$.06\
h] P"5$&0"5&8(C5+&-)887'&.-&`>>a&,7#--B&.$-0#77&#&-058<9(C$&0+#$-*(+?5+6
h_ r558&#&C.+.$/&9.-0#$,5&(*&C.0".$&^?&250C55$&0"5&.$45+05+B&2+#%5&)$.0&[:;<AT]\&#$9&9.-,"#+/.$/&+5-.-0(+6&W45$&C"5$&0"5&C.+.$/
.-&0C.-059B&0"5&,#275&75$/0"&?)-0&$(0&5@,559&F>?6
h` 30&.-&+5,(??5$959&0(&.$-0#77&#$&5@05+$#7&0"5+?#7&+57#'&0(&8+545$0&(45+"5#0&(*&9.-,"#+/.$/&+5-.-0(+-6
h^
;5*5+&0(&:;<AT]&?#$)#7&*(+&,($$5,0.($&?50"(9&(*&9.-,"#+/.$/&+5-.-0(+6
a)<.&#H1*( R*=',<)L*1L#D&=*=(-) D&'-BB&1;&;#$](&)1<%#>,&)B<%#D&%<8
:;<AT]<k=6^r
R;IR&]>><F>:&[-.@&.$&-5+.5-\
!k<Q]>SlkI&_6EL
:;<AT]<kF^r
R;IR&_>><^:&[5./"0&.$&-5+.5-\
!k<Q]>SlkI&E6EL
:;<AT]<k_>r
R;IR&`>><]:&[0C5745&.$&-5+.5-\
!k<Q]>SlkI&FFL
G:H>5IE
b50&OFO&.$&Pr. 0 Brake mode selection&(*&0"5&:;<AT]&0(&)-5&R;IR&0'85&9.-,"#+/.$/&+5-.-0(+6
N(&$(0&+5?(45&#&M)?85+&#,+(--&05+?.$#7&dYe&#$9&dF&5@,580&C"5$&,($$5,0.$/&#&NS&+5#,0(+6
U
V
W
P/+
N/-
R/L1
S/L2
T/L3
Motor
IM
Inverter
PR
N/-
BUE
PC
P/+
A
B
C
FR-BU2
Three-phase AC
power supply
MCCB
MC
OFFON
MC
T
*1
*3
*3
*2
MC
5m or less
GRZG type
discharging resistor
External thermal
relay
RR
*4
OCR
OCR contact
To the brake
unit terminal P/+
To a resisto
r
TH-N20
1/L1 5/L3
2/T1 6/T3

Table of Contents

Other manuals for Mitsubishi Electric FR-F740-00023

Related product manuals