EasyManua.ls Logo

Mitsubishi Electric FR-F740-00023

Mitsubishi Electric FR-F740-00023
341 pages
To Next Page IconTo Next Page
To Next Page IconTo Next Page
To Previous Page IconTo Previous Page
To Previous Page IconTo Previous Page
Loading...
35
Connection of stand-alone option units
2
C5D5EF
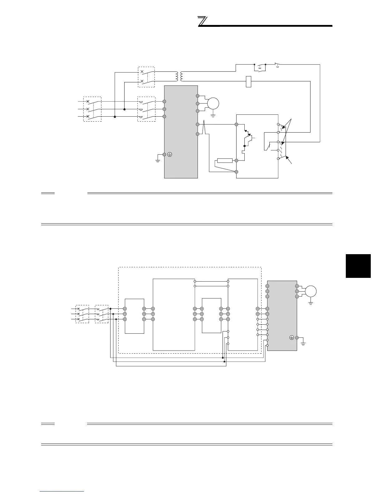
2.4.3 Connection of the brake unit (BU type)
S($$5,0&0"5&2+#%5&)$.0&[AT&0'85\&,(++5,07'&#-&-"(C$&257(C6&3$,(++5,0&,($$5,0.($&C.77&9#?#/5&0"5&.$45+05+6&;5?(45&0"5&M)?85+
#,+(--&05+?.$#7-&kA<dS&#$9&05+?.$#7-&!A<kS&(*&0"5&2+#%5&)$.0&#$9&*.0&.0&0(&#,+(--&05+?.$#7-&dS<!A6
2.4.4 Connection of the high power factor converter (FR-HC/MT-HC)
P"5$&,($$5,0.$/&0"5&"./"&8(C5+&*#,0(+&,($45+05+&[:;<kS\&0(&-)88+5--&8(C5+&"#+?($.,-B&85+*(+?&C.+.$/&-5,)+57'&#-&-"(C$&257(C6
3$,(++5,0&,($$5,0.($&C.77&9#?#/5&0"5&"./"&8(C5+&*#,0(+&,($45+05+&#$9&.$45+05+6
L*05+&?#%.$/&-)+5&0"#0&0"5&C.+.$/&.-&,(++5,0B&-50&O]O&.$&Pr. 30 Regenerative function selection6&[Refer to page 1026\
[F\ S($$5,0.($&C.0"&0"5&:;<kS&[>FFE>&(+&75--\
hF P"5$&0"5&8(C5+&-)887'&.-&`>>a&,7#--B&.$-0#77&#&-058<9(C$&0+#$-*(+?5+6
G:H>5IE
!"5&C.+.$/&9.-0#$,5&250C55$&0"5&.$45+05+B&2+#%5&)$.0&#$9&9.-,"#+/.$/&+5-.-0(+&-"()79&25&C.0".$&]?6&3*&0C.-059&C.+5-&#+5&)-59B&0"5
9.-0#$,5&-"()79&25&C.0".$&^?6&
3*&0"5&0+#$-.-0(+-&.$&0"5&2+#%5&)$.0&-"()79&25,(?5&*#)70'B&0"5&+5-.-0(+&,#$&25&)$)-)#77'&"(0B&,#)-.$/&#&*.+56&!"5+5*(+5B&.$-0#77&#
?#/$50.,&,($0#,0(+&($&0"5&.$45+05+m-&8(C5+&-)887'&-.95&0(&-")0&(**&#&,)++5$0&.$&,#-5&(*&*#)706
N(&$(0&+5?(45&#&M)?85+&#,+(--&05+?.$#7&dYe&#$9&dF&5@,580&C"5$&,($$5,0.$/&#&NS&+5#,0(+6
hF ;5?(45&0"5&M)?85+-&#,+(--&0"5&.$45+05+&05+?.$#7-&;YZF<;FYZFFB&bYZ]<bFYZ]FB&#$9&,($$5,0&0"5&,($0+(7&,.+,).0&8(C5+&-)887'&0(&0"5&;FYZFF&#$9&bFY
Z]F&05+?.$#7-6&L7C#'-&%558&0"5&8(C5+&.$8)0&05+?.$#7-&;YZFB&bYZ]B&!YZ_&(85$6&3$,(++5,0&,($$5,0.($&C.77&9#?#/5&0"5&.$45+05+6&[W6Ud!&[(80.($&*#)70\
C.77&(,,)+6&[Refer to page 278.\\
h] N(&$(0&.$-5+0&0"5&1SSA&250C55$&05+?.$#7-&dYe&&QY<&[dYe&&dYeB&QY<&&QY<\6&U88(-.05&8(7#+.0'&(*&05+?.$#7-&QY<B&dYe&C.77&9#?#/5&0"5&.$45+05+6
h_ T-5&Pr. 178 to Pr. 189 (input terminal function selection) 0(&#--./$&0"5&05+?.$#7-&)-59&*(+&0"5&lF>&[lFF\&-./$#76&[Refer to page 110.)
:(+&,(??)$.,#0.($&C"5+5&0"5&-0#+0&,(??#$9&.-&-5$0&($7'&($,5B&56/6&;b<`G^&,(??)$.,#0.($&(85+#0.($B&)-5&0"5&lFF&-./$#7&C"5$&?#%.$/&-500.$/&0(
"(79&0"5&?(95&#0&(,,)++5$,5&(*&#$&.$-0#$0#$5()-&8(C5+&*#.7)+56&[Refer to page 102.)
h` A5&-)+5&0(&,($$5,0&05+?.$#7&;NX&(*&0"5&:;<kS&0(&0"5&lF>&-./$#7&(+&1;b&-./$#7&#--./$59&05+?.$#7&(*&0"5&.$45+05+B&#$9&,($$5,0&05+?.$#7&bW&(*&0"5
:;<kS&0(&05+?.$#7&bN&(*&0"5&.$45+05+6&P.0"()0&8+(85+&,($$5,0.$/B&:;<kS&C.77&25&9#?#/596
G:H>5IE
!"5&4(70#/5&8"#-5-&(*&05+?.$#7-&;YZFB&bYZ]B&!YZ_&#$9&05+?.$#7-&;`B&b`B&!`&?)-0&25&?#0,"596
T-5&-.$%&7(/.,&C"5$&0"5&:;<kS&.-&,($$5,0596&!"5&:;<kS&,#$$(0&25&,($$5,059&C"5$&-()+,5&7(/.,&[.$.0.#7&-500.$/\&.-&-575,0596
N(&$(0&+5?(45&#&M)?85+&#,+(--&05+?.$#7&dYe&#$9&dF&5@,580&C"5$&,($$5,0.$/&#&NS&+5#,0(+6
U
V
W
IM
Brake unit
(BU type)
Discharging
resistor
R/L1
S/L2
T/L3
N/-
P/+
MC
P
PR
OCR
N
Remove the
jumper
Fit a jumper
HC
HB
HA
TB
OCR
PC
MC
OFFON
MC
T*1
Three-phase
A
C power
supply
MCCB
Inverter
Motor
Inverter
Outside box
Three-phase
A
C power
supply
MCCB
High power factor converter
(FR-HC)(FR-HCB)
Reactor2
(FR-HCL02)
R/L1
Reactor1
(FR-HCL01)
phase
detection
S/L2
T/L3
P/+
N/-
X11
*3
X10
*3
RES
U
V
W
P
N
Y1orY2
RDY
RSO
MC1
MC2
R4
S4
T4
R
S
T
R4
S4
T4
R3
S3
T3
R3
S3
T3
R2
S2
T2
R2
S2
T2
R
S
T
MC1
MC2
SD
SE
R1/L11
S1/L21
MC
*1
*1
*2
*4
Moto
r
IM

Table of Contents

Other manuals for Mitsubishi Electric FR-F740-00023

Related product manuals