EasyManua.ls Logo

Mitsubishi MELSEC-A series - Page 392

Mitsubishi MELSEC-A series
508 pages
Print Icon
To Next Page IconTo Next Page
To Next Page IconTo Next Page
To Previous Page IconTo Previous Page
To Previous Page IconTo Previous Page
Loading...
9 - 26
ERROR CODE LIST9.
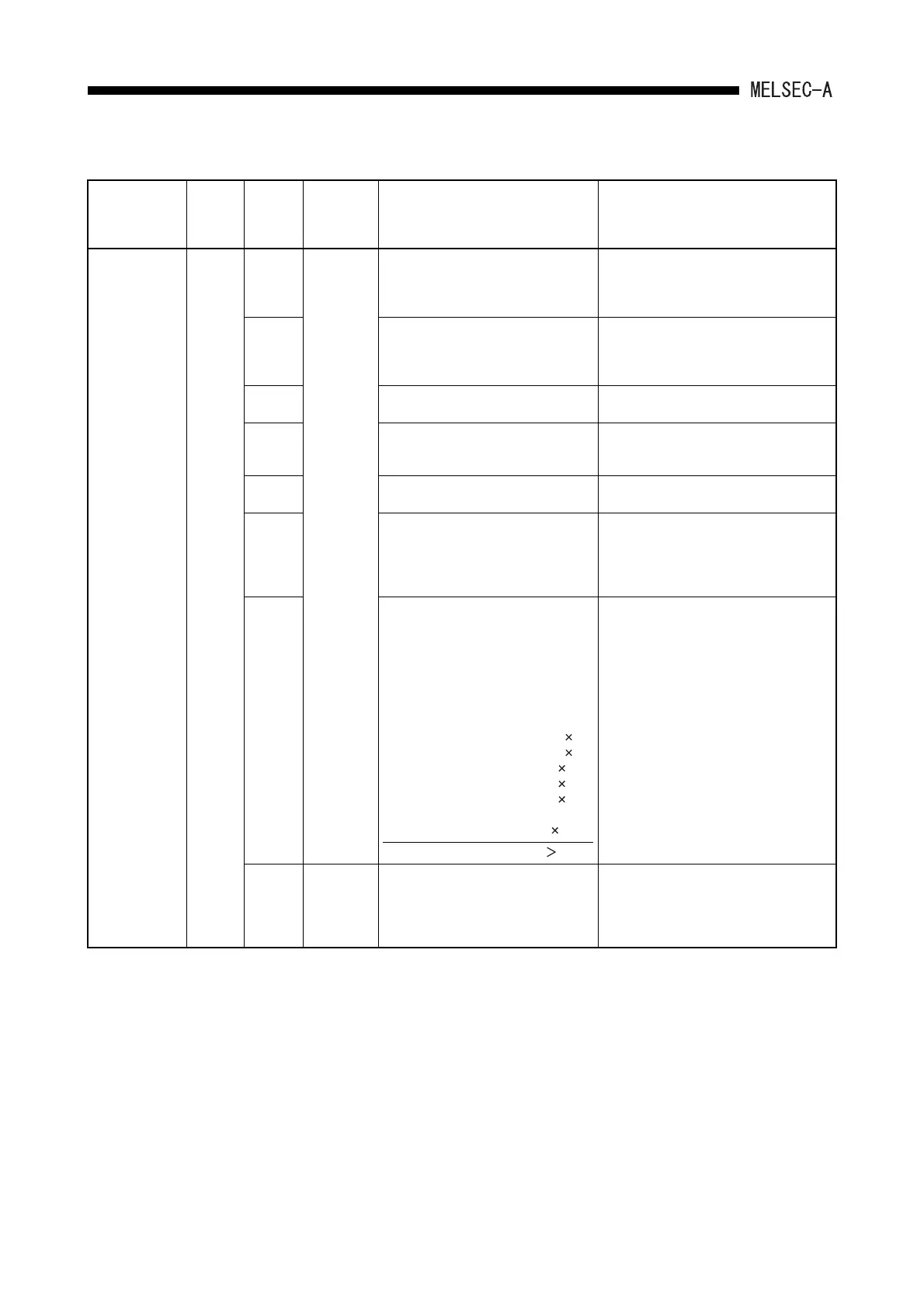
Table 9.4 Error Code List for the AnU, A2AS and A2USH board (Continue)
Error Massage
Error
Code
(D9008)
Detailed
Error
Code
(D9091)
CPU
States
Error and Cause Corrective Action
"SP.UNIT
LAY.ERR."
44 441 STOP A special function module is assigned
as an I/O module, or vice versa, in the
I/O assignment using parameters from
the peripheral device.
Execute I/O assignment again using
parameters from the peripheral device
according to the loading status of special
function modules.
442 There are 9 or more special function
modules (except the interrupt module)
which can execute interruption to the
CPU module loaded.
Reduce the special function modules
(except the interrupt module) which can
execute interrupt start to 8 or less.
443 There are 3 or more data link modules
loaded.
Reduce the data link modules to 2 or less.
444 There are 7 or more modules such as
a computer link module loaded to one
CPU module.
Reduce the computer link modules to 6 or
less.
445 There are 2 or more interrupt modules
loaded.
Reduce the interrupt modules to 1 or less.
446 Modules assigned by parameters for
MNT/MINI automatic refresh from the
peripheral device do not conform with
the types of station modules actually
linked.
Perform again module assignment for
MNT/MINI automatic refresh with
parameters according to actually linked
station modules.
447 The number of modules of I/O
assignment registration (number of
loaded modules) per one CPU module
for the special function modules which
can use dedicated instructions is
larger than the specified limit. (Total of
the number of computers shown
below is larger than 1344.)
Reduce the number of loaded special
function modules.
(AD59 5)
(AD57(S1)/AD58 8)
(AJ71C24(S3/S6/S8) 10)
(AJ7IUC24 10)
(AJ71C21(S1) (S2) 29)
+ ((AJ71PT32(S3) in extension
mode 125)
Total 1344
448* (1) Five or more network modules
have been installed.
(2) A total of five or more of network
modules and data link modules
have been installed.
Make the total of the installed network
modules and data link modules four or
less.

Table of Contents

Other manuals for Mitsubishi MELSEC-A series

Related product manuals