EasyManua.ls Logo

Mitsubishi Outlander PHEV 2019

Mitsubishi Outlander PHEV 2019
602 pages
To Next Page IconTo Next Page
To Next Page IconTo Next Page
To Previous Page IconTo Previous Page
To Previous Page IconTo Previous Page
Loading...
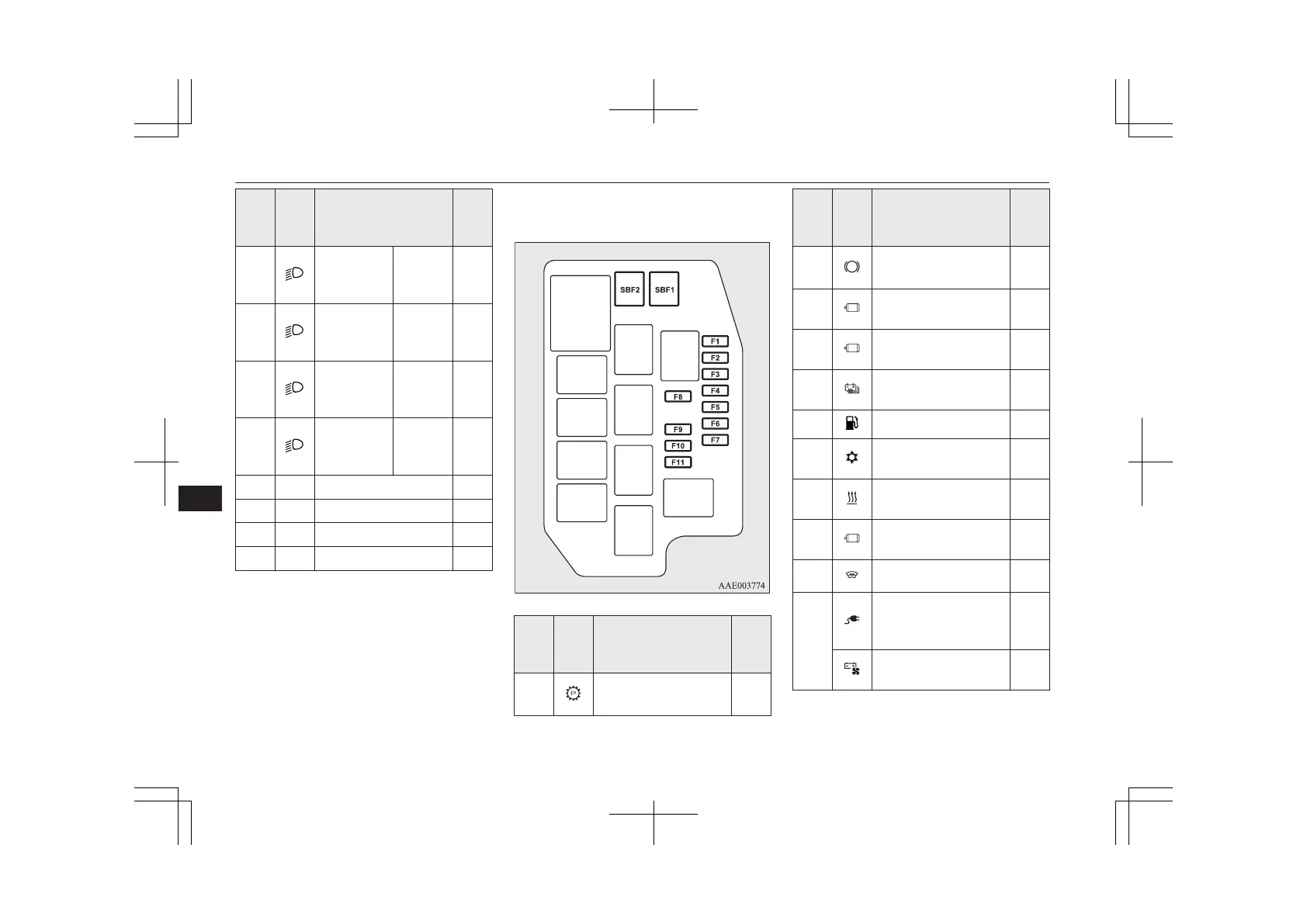
No.
Sym-
bol
Electrical system
Ca-
paci-
ty
F19
Headlamp
low beam
(left)
LED 20 A
F20
Headlamp
low beam
(right)
LED 20 A
F21
Headlamp
low beam
(left)
Halogen 10 A
F22
Headlamp
low beam
(right)
Halogen 10 A
F23
#1 Spare fuse 10 A
#2 Spare fuse 15 A
#3 Spare fuse 20 A
*
: Fusible link
l
Some fuses may not be installed on your
vehicle, depending on the vehicle model
or specifications.
l
The table above shows the main equip-
ment corresponding to each fuse.
Sub fuse block
No.
Sym-
bol
Electrical system
Ca-
paci-
ty
SBF1
Electrical Parking
Lock
30
A
*
*
: Fusible link
No.
Sym-
bol
Electrical system
Ca-
paci-
ty
SBF2
Vacuum pump (Regen-
erative brake)
30
A
*
F1
Water pump (Electric
motor)
20 A
F2
Battery management
unit
7.5A
F3
Drive battery PTC
heater
15A
F4 Fuel tank filler door 7.5 A
F5
Solenoid valve (Air
conditioning)
7.5 A
F6
Water pump (Air con-
ditioning)
7.5 A
F7
Electric motor unit
control
10 A
F8 Heated windscreen 7.5 A
F9
Power feeder and
charger connector
(12V)
10 A
Drive battery fun mo-
tor
15 A
*
: Fusible link
Fuses
11-22
OGGE19E1
Maintenance
11

Table of Contents

Other manuals for Mitsubishi Outlander PHEV 2019

Related product manuals