EasyManua.ls Logo

MTU 12V2000M93 - Drain and Venting Points (Coolant Circuit)

MTU 12V2000M93
163 pages
Print Icon
To Next Page IconTo Next Page
To Next Page IconTo Next Page
To Previous Page IconTo Previous Page
To Previous Page IconTo Previous Page
Loading...
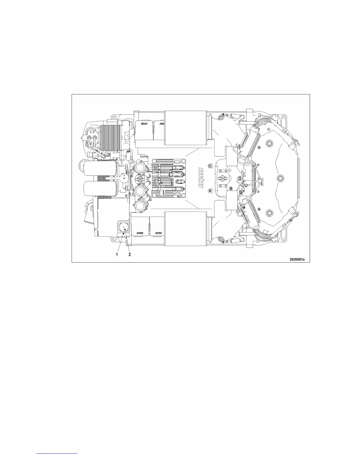
7.15 Coolant Circuit, General, High-Temperature Circuit
7.15.1 Drain and venting points
12 V, 16 V
1 Overflow line, expansion
tank
2 Filler neck
116 | Task Description | M015655/05E 2015-06
TIM-ID: 0000038198 - 001

Table of Contents

Related product manuals