EasyManua.ls Logo

NCR SelfServ 28 - Bolt and Cable Entry Hole Locations; Bolt Holes

NCR SelfServ 28
40 pages
Print Icon
To Next Page IconTo Next Page
To Next Page IconTo Next Page
To Previous Page IconTo Previous Page
To Previous Page IconTo Previous Page
Loading...
NCR SelfServ 28 ATM Site Preparation
B006-6884-A000 23
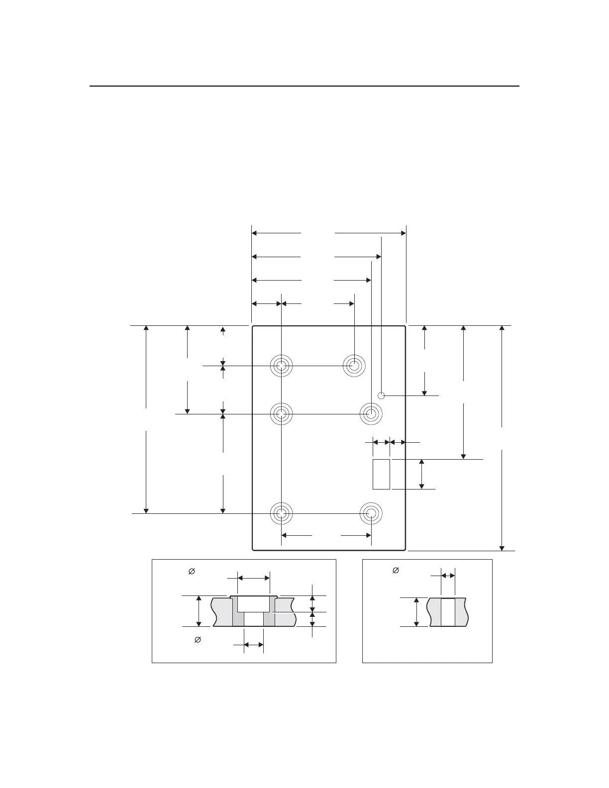
BOLT AND CABLE ENTRY HOLE LOCATIONS
Bolt Holes
The following illustration shows a plan view of the base of the ATM which can be used
for pre-drilling bolt holes.
Bolt holes are marked ‘A’ and the cable entry hole marked ‘B’. The hole marked with ‘C’
enables a security alarm sensor to be fitted.
45.0 mm
(1.77 in.)
28.0 mm
(1.10 in.)
20.0 mm
(0.79 in.)
AC
43.0 mm
(1.69 in.)
40.0 mm
(1.69 in.)
23.0 mm
(0.90 in.)
20.0 mm
(0.79 in.)
350 mm
(13.78 in.)
380 mm
(14.96 in.)
450 mm
(17.72 in.)
119 mm
(4.68 in.)
145 mm
(5.71 in.)
300 mm
(11.81 in.)
674 mm
(26.54 in.)
564 mm
(22.20 in.)
264 mm
(10.39 in.)
A
A
A
A
A
A
C
B
215 mm
(8.46 in.)
265 mm
(10.43 in.)
85 mm
(3.35 in.)
50 mm
(1.99 in.)
45 mm
(1.77 in.)
209 mm
(8.23 in.)
400 mm
(15.75 in.)
90 mm
(3.54 in.)

Related product manuals