EasyManua.ls Logo

NEC LE2200 - Page 23

NEC LE2200
150 pages
Print Icon
To Next Page IconTo Next Page
To Next Page IconTo Next Page
To Previous Page IconTo Previous Page
To Previous Page IconTo Previous Page
Loading...
2-5
Features
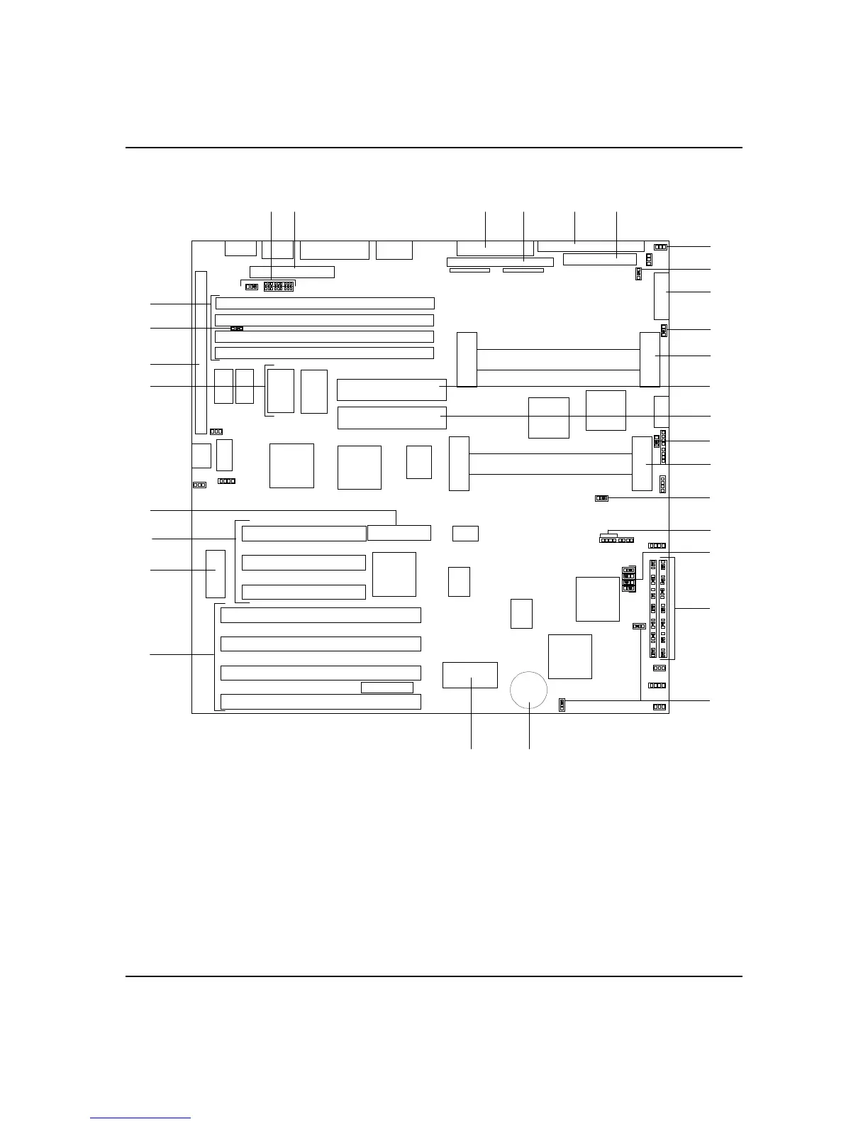
Figure 2-3. System Board
A
C
D
B
E
F
G
H
GI
KML
J
G
V
G
N
O
P
Q
G
G
G
G
G
T
U
J41
J8
S
R
A.
ISA expansion slots
L.
Front panel connector
B.
BIOS
M.
Diskette connector
C.
PCI expansion slots
N.
CPU 2 (optional)
D.
RAID connector (reserved)
O.
Voltage Module 2 (optional)
E.
Optional Video DRAM sockets (2)
P.
Voltage Module 1
F.
I/O riser board connector
Q.
CPU 1
G.
Configuration jumpers
R.
Speaker connector
H.
DIMM Sockets (4)
S.
Fan connector
I.
IDE connector
T.
Real time clock battery
J.
Wide SCSI connector
U.
Non-volatile memory
K.
Narrow SCSI connector
V.
Reserved

Table of Contents

Related product manuals