EasyManua.ls Logo

Nibe ACVM 270 - Page 29

Nibe ACVM 270
96 pages
Print Icon
To Next Page IconTo Next Page
To Next Page IconTo Next Page
To Previous Page IconTo Previous Page
To Previous Page IconTo Previous Page
Loading...
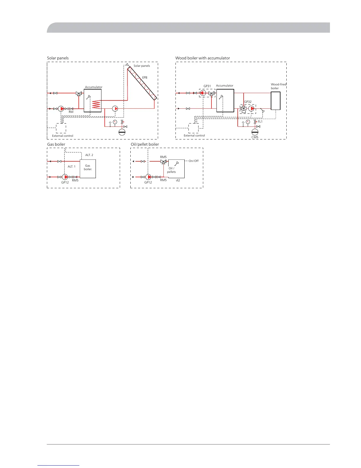
External additional heat
Gaspanna Olje-/pelletspanna
Solfångare
EP8
RM5
ALT 1
GAS V.
ALT 2
HQ
EB1
EM2
RM5
RM5
On/off
Frånluftsvärmepump
On/off
Vedpanna med ackumulator
CP1
CM5
GP31
GP32
EM1
FL1
GP12 GP12
RM
CP2
Extern styrning
Extern styrning
Solar panels Wood boiler with accumulator
Gas boiler Oil/pellet boiler
Solar panels
Accumulator
Wood-fired
boiler
Oil /
pellets
Gas
boiler.
On/Off
Exhaust air heat pump
On/Off
F120
Accumulator
ALT. 2
ALT. 1
External control
External control
Explanation
Pump station, limits low temperat-
ure
GP32Oil/Pellet boilerEM2Expansion vesselCM5
Particle filterHQSafety valveFL1Accumulator tankCP1
Non-return valveRM5Charge pumpGP12Immersion heaterEB1
Pump station, limits high temperat-
ure
GP31Wood-fired boilerEM1
29NIBE™ SPLIT ACVM 270
For the Installer
Pipe installation

Table of Contents

Related product manuals