EasyManua.ls Logo

Nibe Fighter 200P - Wiring Diagram

Nibe Fighter 200P
32 pages
Print Icon
To Next Page IconTo Next Page
To Next Page IconTo Next Page
To Previous Page IconTo Previous Page
To Previous Page IconTo Previous Page
Loading...
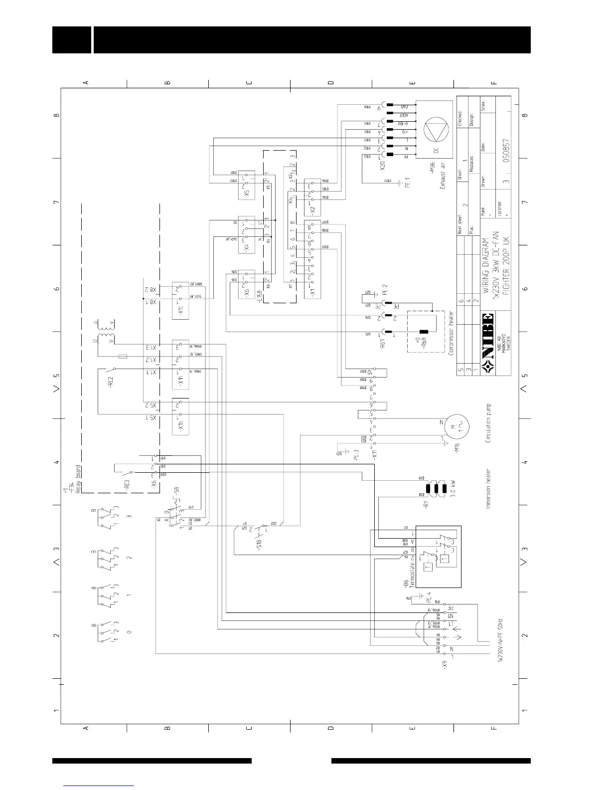
Wiring diagram
FIGHTER 200P
For the Installer
20

Table of Contents

Other manuals for Nibe Fighter 200P

Related product manuals