EasyManua.ls Logo

Nibe FLM - Page 19

Nibe FLM
40 pages
To Next Page IconTo Next Page
To Next Page IconTo Next Page
To Previous Page IconTo Previous Page
To Previous Page IconTo Previous Page
Loading...
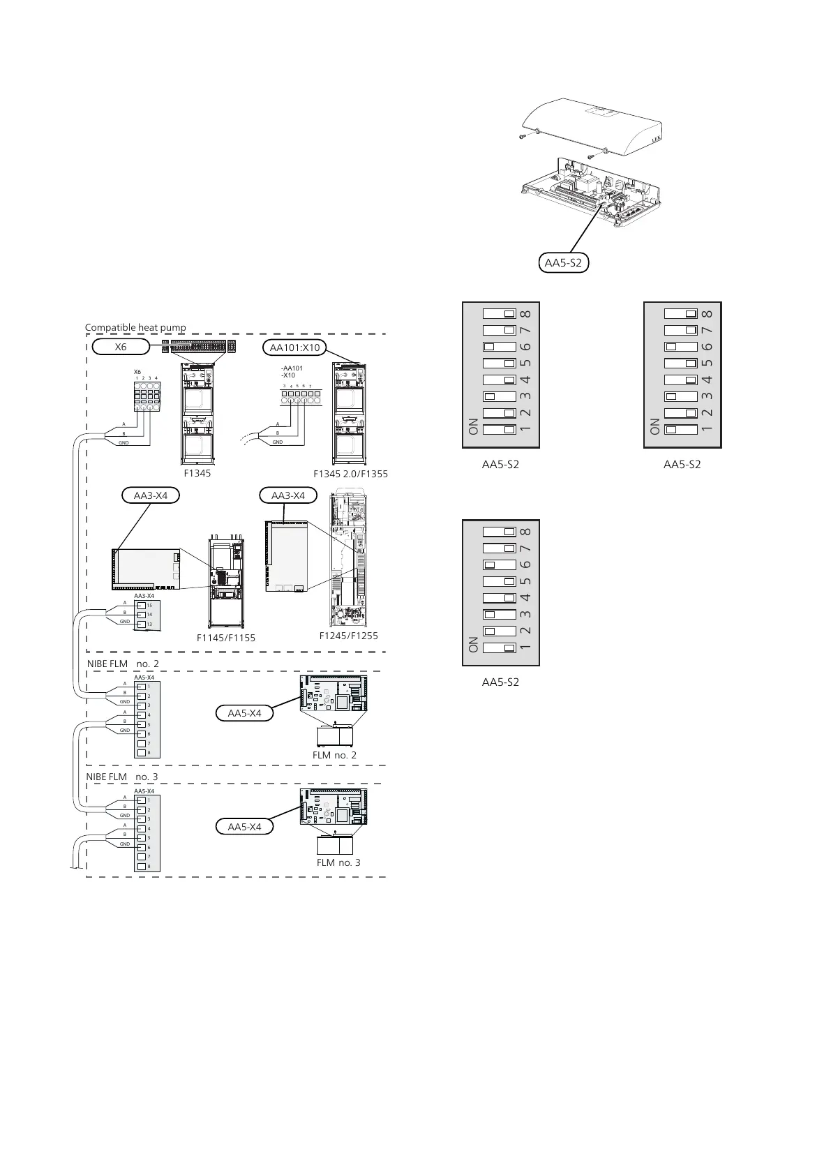
Connecting the communication to NIBE FLM
no. 2-4
NIBE FLM no. 2 connects directly to the heat pump on
the input board (terminal block AA3-X4) in
F1145/F1155/F1245/F1255 or on terminal block X6 in
F1345 and on terminal block AA101:X10 in F1345
2.0/F1355.
NIBE FLM no. 3 connects to the accessory board’s ter-
minal block (AA5-X4) in NIBE FLM no. 2.
NIBE FLM no. 4 connects in a similar way in NIBE FLM
no. 3.
Use cable type LiYY, EKKX or similar.
1
2
3
4
5
6
7
8
AA5-X4
15
A
B
GND
A
B
GND
A
B
GND
A
B
GND
A
B
GND
14
13
AA3-X4
1
2
3
4
5
6
7
8
AA5-X4
X6
1 2 3 4
A
B
GND
1
2
3
4
5
6
7
8
15
14
13
1
2
3
4
5
6
7
8
F1245/F1255
F1145/F1155
AA3-X4
ON
1 2 3 4 5 6 7 8
-X9
-X2
24 20212223 1516171819 1011121314 56789 1
1
N
L
PE
PE
1
2
3
4
5
6
7
8
2
3
4
5
6
7
8
9
234
-X8
-X4
-X10
-X1
AA5-X4
AA3-X4
LEK
F750
LEK
F1345
NIBE FLM no. 2
NIBE FLM no. 3
X6
FLM no. 2
ON
1 2 3 4 5 6 7 8
-X9
-X2
24 20212223 1516171819 1011121314 56789 1
1
N
L
PE
PE
1
2
3
4
5
6
7
8
2
3
4
5
6
7
8
9
234
-X8
-X4
-X10
-X1
FLM no. 3
AA5-X4
Compatible heat pump
LEK
F1345 2.0/F1355
AA101:X10
3
4
5
-X10
-AA101
6
7
A
B
GND
NIBE FLM 2-4 can be connected in a similar way to a
previously installed accessory and its accessory board.
The DIP switch (AA5-S2) must be set as follows.
LEK
LEK
S3 AA5-S2 AA5
AA5-S2
ON
1 2 3 4 5 6 7 8
AA5-S2
NIBE FLM no. 3
ON
1 2 3 4 5 6 7 8
AA5-S2
NIBE FLM no. 2
ON
1 2 3 4 5 6 7 8
AA5-S2
NIBE FLM no. 4
19Chapter 5 | Electrical connectionsNIBE FLM

Other manuals for Nibe FLM

Related product manuals